Felújítandó parasztház eladó Pilismaróton
Cím | |||
| Magyarország, Komárom-Esztergom, 2028 Pilismarót | |||
Épület | |||
| Altípus | Családi | Építési mód | Vegyes |
| Ingatlan külső állapota | Felújításra szoruló | Szintek száma | 1 |
Műszaki adatok | |||
| Ingatlan belső állapota | Felújítandó | Fűtés | Nincs |
| Víz | Van | Gáz | Telken |
| Villany | Van | Csatorna | Van |
Általános adatok | |||
| Parkolás | Telken parkoló | ||
Helyiségek | |||
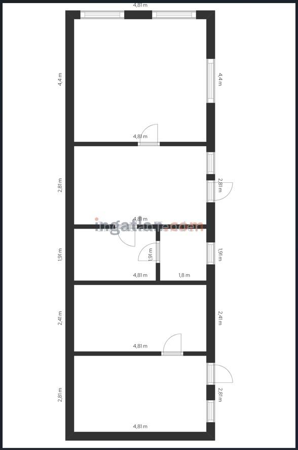
| Szobaszám | 3 | ||
Leírás | |||
Megvételre kínálok a Dunakanyar egyik kedvenc településén, Pilismaróton egy családi házat. Az ingatlan a település főútján található. Az udvarban négy család él. A hirdetés tárgyát az egyik utcafronti épület képezi, mely két helyrajzi számon szerepel, a tulajdoni lap szerint 57+50 nm. A házak 1/1-es tulajdonúak, a közös udvarra ügyvéd által ellenjegyzett használati megállapodás készült, melynek eredménye képpen az ingatlanra lakáshitel igényelhető. Az utca ezen oldalán zártsorú beépítés jellemző, ennek következtében ide is egy kapualjon keresztül jutunk. A telek jobb oldalán álló hosszúkás, parasztház jellegű épület vegyes falazatú, cserép fedésű, erősen felújítandó állapotú. Nappali és éjszakai áram is rendelkezésre áll. Gázvezeték a telken található. A felújítás során akár két lakrész is kialakítható, a tornác beépítésével további hasznos terek nyerhetőek. Az ablakcseréhez a tulajdonos már megvásárolta a beépítendő fa nyílászárókat, melyek a vételár részét képezik. Az épület teljes hosszában egy 60 nm-es elkerített udvarrész a tulajdonos kizárólagos használatában van. A kerítés elbontásával erre a területre egy saját gépjárműbeálló is létesíthető. A telek végében lévő 143 nm-es területen pihenő-, vagy konyhakert is kialakítható. A közelben Coop és CBA áruház, zöldséges, dohánybolt, takarmánybolt, buszmegálló található. A településen óvoda, iskola működik, Esztergom 10 perc autóútra elérhető. Ajánlom gyermekes családoknak, pároknak, akik a nagyvárosok zajától távol, egy kedves kis Dunamenti településen képzelik mindennapjaikat, vagy szabadidejüket. Az erdő és a Duna közelsége rengeteg szabadidős , és sportolási lehetőséget biztosít. A településen falusi CSOK igényelhető. Amennyiben hirdetésem felkeltette érdeklődését, vagy bővebb információra van szüksége, hívjon a megadott számon telefonon, vagy WhatsAppon. Az ingatlan előzetes időpont egyeztetés után a hét bármely napján megtekinthető. Igény esetén teljeskörű bankfüggetlen hitelügyintézéssel, jogi háttérrel állunk ügyfeleink rendelkezésére. | |||


