Eladó Ház, Balatonfüred
Cím | |||
| Magyarország, Veszprém, 8230 Balatonfüred | |||
Épület | |||
| Altípus | Ikerház | Építési év | 2024 év |
| Építési mód | Tégla | ||
Műszaki adatok | |||
| Fűtés | Hőszivattyú | Komfort típus | Összkomfort |
| Víz | Van | Gáz | Utcában |
| Villany | Van | Csatorna | Van |
Általános adatok | |||
| Parkolás | Teremparkoló | Tájolás | dél |
Helyiségek | |||
| Szobaszám | 2 | Félszobák száma | 4 |
Leírás | |||
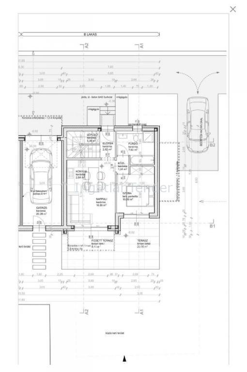
Balatonfüreden a Balatontól mindössze 500 méterre, eladó egy új építésű, két szintes ikerház. Ez a modern otthon a legmagasabb műszaki felszereltséggel rendelkezik, hogy kényelmes és energiahatékony életteret biztosítson. A földszinten található: konyha-nappali-étkező, egy hálószoba, zuhanyzós fürdőszoba wc-vel, háztartási helyiség és nagyméretű terasz. Az emeleten: konyha-nappali étkező, 2 hálószoba, külön wc, zuhanyzós fürdő és 3 db erkély található. Igény szerint, minimális ráfordítással az emeleti konyhából plusz egy hálószoba kialakítható. Főbb jellemzők: Telekméret: 500 m2 Hasznos alapterület: 145m2 Teraszok és erkélyek: -Földszinti terasz: 26m2 -Emeleti erkélyek: 3 különálló erkély - Padlófűtés és padlóhűtés Panasonic hőszivattyúval, télen-nyáron kellemes klíma - 15cm vastag hőszigetelés, Elektromos redőnyök, 3 rétegű üvegezés, tökéletes hőszigetelés és kényelem - Elektromos kapu és garázskapu, könnyű és kényelmes parkolás - Locsolórendszer, gondozott kert minimális erőfeszítéssel - Riasztó és kamerarendszer előkészítve, biztonságos otthon Lokáció: minden karnyújtásnyira! Balaton-part: 500 méter Bevásárlási lehetőségek, éttermek, kávézók: néhány percre gyalog Kultúra és kikapcsolódás sétatávolságra Ez a modern ikerház tökéletes választás családoknak, nyaralónak vagy befektetésnek is! Hívjon még ma és tekintse meg! Érdeklődni: Kiss Hortenzia Referencia szám: M303750 | |||


