Eladó, ház, Veszprém, Balatonfüred
Cím | |||
| Magyarország, Veszprém, 8230 Balatonfüred | |||
Épület | |||
| Építési év | 2023 év | ||
Műszaki adatok | |||
| Ingatlan belső állapota | Új építésű | Fűtés | Gázkazán |
| Csatorna | Van | ||
Általános adatok | |||
| Tájolás | dél | ||
Helyiségek | |||
| Szobaszám | 4 | ||
Leírás | |||
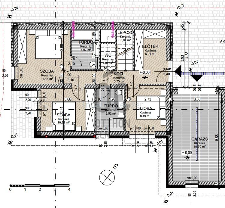
Balatonfüred csendes utcájában kínáljuk megvételre ezt az új ikerházat, amely kétszintes, és a felső szintről csodás panorámát kap új tulajdonosa. A házakhoz garázs is épül, és hogy ne zavarják egymás kényelmét és nyugalmát, az ikerház közé lettek tervezve. Mivel a panorámája az ingatlanoknak az emeleti részről kiváló, így az egy légterű konyha, nappali és étkező, valamint a fedett terasz is itt került kialakításra, hogy Ön és családja a panorámát a nap minden szakában láthassa. A fsz-en került kialakításra három szoba, és ehhez is nagy terasz tartozik. sőt a kertkapcsolatos udvaron még medence is helyet kap. A lakások hűtését, fűtését energiatakarékos, modern levegő-víz hőszivattyú biztosítja. A házakat kivitelező minőségi anyagokból építi, és ha Ön most foglalja még bármelyik lakást is, úgy előnyt élvez, hiszem még a burkolatok kiválasztásánál az Ön igényének megfelelően tud kivitelező alkalmazkodni. Nos? Azt gondolom, hogy kiváló ingatlant, kiváló áron ajánlok Önnek és családjának, ha még ma felhív! Várom megtisztelő hívását! Közművek: villany,csatorna | |||


