Sell, land plot, Fejér, Óbarok
Address | |||
| Hungary, Fejér, 2063 Óbarok | |||
Description | |||
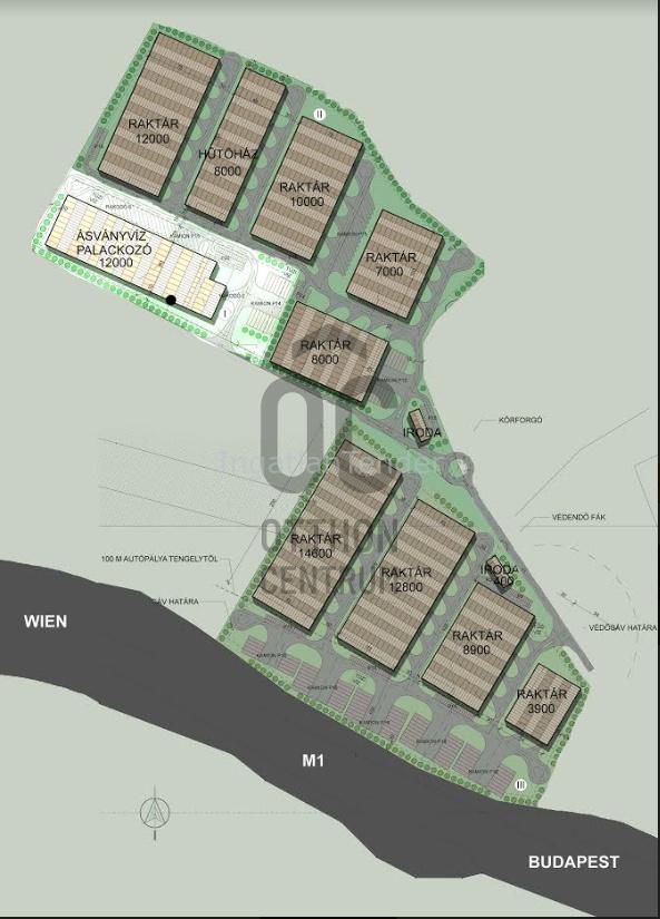
Eladó 19,2 ha beruházási terület az M1 mellett 60 %-os beépíthetőséggel Elhelyezkedés: - Központi régióban található - Közvetlen autópálya lehajtó - M0 10-15 percre - Budapest 40 km - Bécs 210 km - Ferihegy 50 km - Győr 80 km A terület egy része közvetlen az autópálya mellett van, a másik része beljebb, csendesebb részen. A beruházási terület nagyon sok lehetőséget rejt magában, akár ipari hasznosításra, - ásványvíz palackozó üzem, - logisztikai központ, - gyár, stb./ akár egyéb fejlesztésekre, - idősek otthona, - kórház, - wellness központ stb./. Övezeti besorolás: GKSZ Beépíthetőség: 60 % Építmény magasság: 12 méter Minimum zöldfelület: 20 % A területre összesen 115200 nm felépítmény építhető. Az alsó terület mellett további 7 ha vásárlására van még lehetőség. |


