Nagy családosok figyelem!
Cím | |||
| Magyarország, Hajdú-Bihar, 4034 Debrecen - Kondoros | |||
Épület | |||
| Altípus | Családi | Építési év | 1987 év |
| Építési mód | Tégla | ||
Műszaki adatok | |||
| Fűtés | Cirkó | Víz | Van |
| Gáz | Van | Villany | Van |
| Csatorna | Van | ||
Általános adatok | |||
| Parkolás | Garázs | Tájolás | északnyugat |
Helyiségek | |||
| Szobaszám | 4 | ||
Leírás | |||
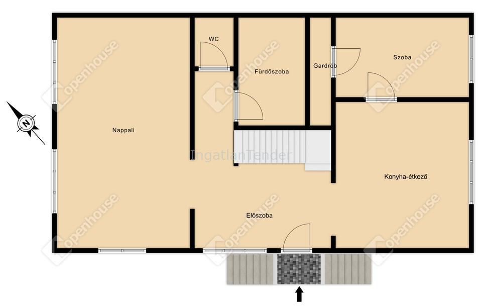
Eladó szintes családi ház Debrecenben, Kondoroskert városrészben! A telek mérete 651 m², gondozott kerttel és fúrt kúttal. A lakótér 132 m², praktikus elrendezéssel. A ház beton alapra épült B30-as téglából, a tető kiváló állapotú pala tető. Nyílászárók a konyhában és a földszinti szobában műanyag nyílászárók, a többi helyiségben fa nyílászárók műanyag borítással, mind kiválóan zárnak. Minden helyiség tágas és világos, ideális családok számára. Földszinten található: Tágas nappali, amely akár két szobává alakítható. Egy külön szoba és egy nagy, világos konyha. Fürdőszoba sarokkáddal és külön WC. Nagyméretű előtér, amely kiválóan alkalmas családi fogadótérnek. A nappaliból egy 8 m²-es loggia nyílik. Emeleten található: Két tágas, világos szoba. Fürdőszoba zuhanyzóval és WC-vel. Külön gardrób helyiség. Az egyik szobához tartozik egy 5 m²-es loggia. A ház teljes alápincézett ahol tálálható egy 40m²-es garázs, kazánház, valamint egy konyha és kamra is helyet kapott. Ajánlom családoknak, akik tágas, kényelmes otthont keresnek, csendes környezetben! Ha felkeltette érdeklődését ez az eladó debreceni családi ház, vagy bármely más családi ház és bővebb információt szeretne, keressen bizalommal.Hivatkozási szám: #178721 Az Openhouse Debrecen Hadházi úti Ingatlaniroda tagjaként várom Önt az országos hálózatunk teljes kínálatával. A családi ház vásárláshoz hitelt igényelne? Ingyenes hitelközvetítéssel segít Önnek bankfüggetlen hitelszakértőnk. További szolgáltatásainkkal (pl. értékbecslés, energetikai tanúsítvány, jogi háttér) is segítjük Önt a vásárlásban. Az otthon érték. Az ingatlan üzlet. | |||


