Kiadó, üzlethelyiség, Budapest, XXI. kerület

Cím
Magyarország, Budapest, 1211 XXI. kerület - Gyártelep
Leírás

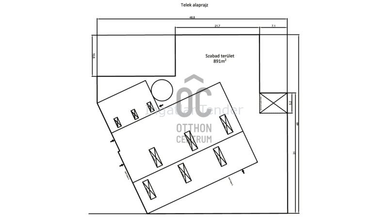
KIADÓ, egy 535nm-es ipari RAKTÁR/CSARNOK, amely acél gerendás, könnyűszerkezettel épült, de a hozzátartozó, irodái és szociális helyiségei PORFIX TÉGLÁBÓL (Ytong) készültek, ami még összesen 434nm-t tesz ki, 1691NM-ES TELKEN!

Főbb jellemzők: -Tágas belső tér a hatékony tároláshoz és mozgáshoz, 7.8 méteres belmagassággal.

-Stratégikus elhelyezkedés a Csepel műveknél, könnyű hozzáféréssel és szállítási lehetőségekkel.

-Modern létesítmény, amit folyamatosan újítanak, beleértve irodákat és szociális helyiségeket.

-Beépített 3 tonnás teherbírású daru a csarnokban.

-Ellátva ipari árammal a hatékony működés érdekében.

-Rugalmas értékesítési feltételek az igényeihez igazítva.

-Az ingatlanhoz tartozik egy külsőleg megközelíthető kis melléképület, ami kiváló megoldást nyújt azoknak, akik a helyszínen szeretné elszállásolni az alkalmazottjait!

Ez a tökéletes választás vállalkozások és befektetők számára!

Amennyiben felkeltette érdeklődését, várom hívását a hét mindennapján!

Kiadó — Üzlethelyiség
  • Alapterület:969 m2
  • Hirdetés #:256930
  • Bérleti díj
  • 2 049 938 Ft/hó

Fotózza le az alábbi kódot a telefonjával és más eszközön is láthatóvá válik a hirdetés.

Ingatlant keres?

Regisztráljon keresőként, akár kiemelésekkel

Használd fizetős szolgáltatásainkat!

Hasonló Hirdetések
^ Fel
Tipp
Egyszerre több ingatlan adatai is láthatóak, az összehasonlítás funkcióval. Ezzel könnyebb lehet a választás, próbálja ki Ön is!
Nem szeretnék több tippet