Eladó telek Törökbálint
Cím | |||
| Magyarország, Pest, 2045 Törökbálint - Törökbálint | |||
Műszaki adatok | |||
| Víz | Utcában | Gáz | Utcában |
| Villany | Van | Csatorna | Van |
Leírás | |||
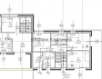
Törökbálinton, 2079 nm nagyságú telek, érvényes tervekkel keresi új tulajdonosát! Néhány fontos paraméter: -utcafronti szélessége ~23,0 m, a telekmélység 92 m -Az utca teljes közművel ellátott. -telek az Üh-2 építési övezetben fekszik -Üh-2 építési övezet előírásai: Beépítésimód: Szabadon álló, Max. terepszint feletti beépítettség: 15 %, de max 300 m2 , Min. zöldfelületi arány: 60% Max. szintterületi mutató: 0,35 Max. épületmagasság: 5,0 + 1,4* = 6,4 m -a tervek két rendeltetési egységet tartalmazó üdülőépületre szólnak Kimondottan jó lehetőség, ha igazi panorámás otthont szeretne építeni családja számára, vagy akár eladási szándékkal. Hívjon bizalommal amennyiben felkeltette érdeklődését ez a lehetőség. | |||


