Eladó telek, Pócsmegyer
Cím | |||
| Magyarország, Pest, 2017 Pócsmegyer Szent István út | |||
Műszaki adatok | |||
| Víz | Utcában | Gáz | Utcában |
| Villany | Telken | Csatorna | Utcában |
Leírás | |||
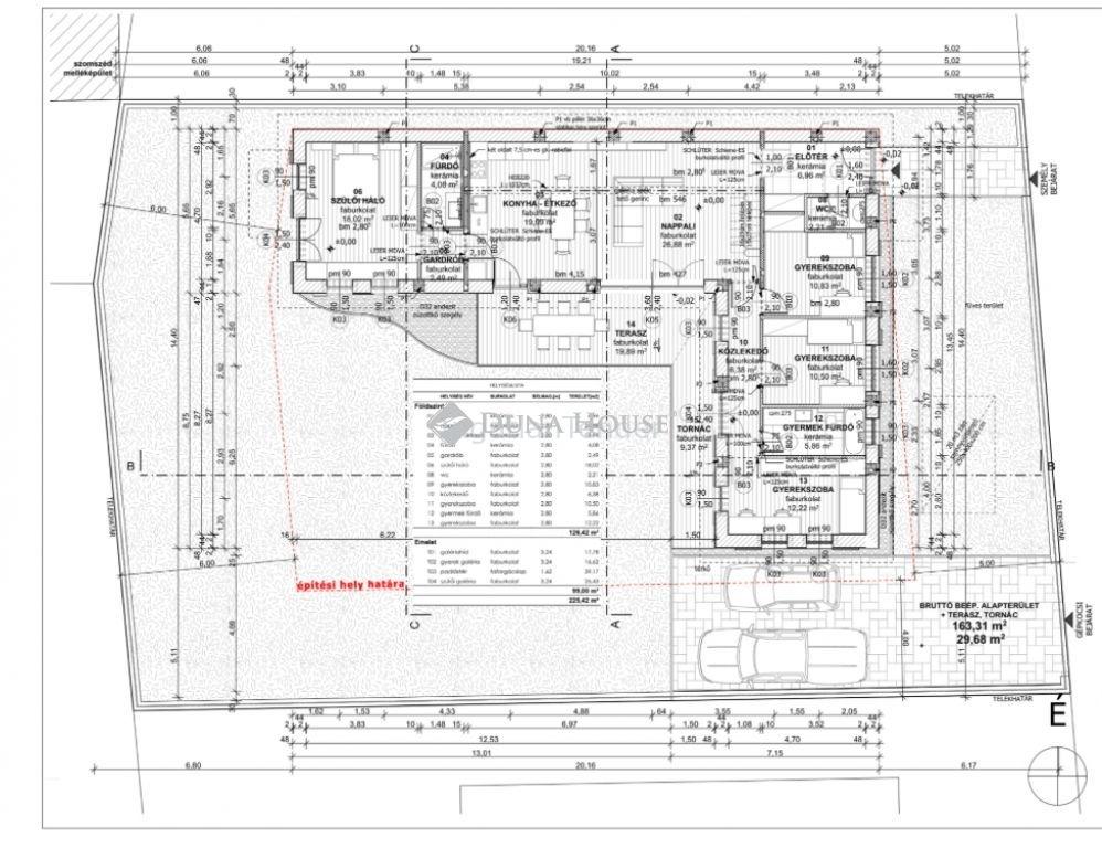
Eladó építési telek Pócsmegyeren a Pázsit-tó közelében érvényes építési engedéllyel! Pócsmegyer csendes, barátságos részén kínálunk megvételre egy 650 m²-es, falusias lakóövezetben (Lf2) található építési telket, mely ideális választás mindazok számára, akik nyugodt környezetben, de Budapest közelségében szeretnének otthont teremteni. A telek érvényes építési engedéllyel rendelkezik egy 120 m²-es, modern családi házra, valamint a kivitelezéshez szükséges e-napló már meg van nyitva, így az építkezés akár azonnal megkezdhető! Övezeti besorolás: Lf2 Falusias lakóövezet A területre vonatkozó főbb építési előírások: - Beépíthetőség: max. 30% - Zöldfelület: min. 40% - Építménymagasság: max. 4,5 m - Megengedett beépítési mód: oldalhatáron álló - Legkisebb kialakítható telekterület: 600 m² A telek közművesített utcában helyezkedik el, a közművek az utcában vagy a telekhatáron elérhetők. A környék nyugodt, rendezett, a közelben iskola, óvoda, bolt, buszmegálló és a Duna-part is megtalálható tökéletes választás családok számára. További kérdéssel, illetve a megtekintéssel kapcsolatban keressen bátran a hét bármely napján! | |||


