Eladó, telek, Budapest, X. kerület
Cím | |||
| Magyarország, Budapest, 1103 X. kerület - Óhegy | |||
Műszaki adatok | |||
| Csatorna | Van | ||
Leírás | |||
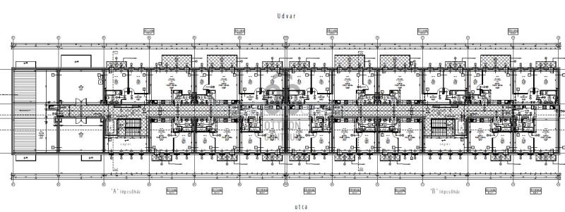
Kőbánya Óhegy parkhoz közeli részén kínálunk eladó fejlesztési területet a hozzá tartozó engedélyezett építési tervvel együtt! Az engedély alapján 61 lakás építhető Telek területe 3720nm Az épület bruttó területe:5769 Lakások össz nettó alapterülete 3236nm Övezeti besorolás: Vi-2/13 Maximális beépíthetőség:35 Eladási ára 1 290 000 € + ÁFA. Megközelítés A leendő ingatlan a Népligettől gépkocsival 12 percre, tömegközlekedéssel pedig 25 percre helyezkedik el. Tömegközlekedéssel a 95, 195 és a 217-es buszjáratokkal lehet megközelíteni. A környék családiházas, zöld környezettel, több nagy park, orvosi rendelő, kormányablak, számos játszótér és kutyafuttató található a közelben. Ideális lehet azoknak, akik a belvárostól távolabb, csendes, kertvárosias lakást keresnek a jövőben és fontos számukra a jó közlekedés. Közművek: villany,csatorna | |||


