Eladó, telek, Veszprém, Dörgicse
Cím | |||
| Magyarország, Veszprém, 8244 Dörgicse | |||
Leírás | |||
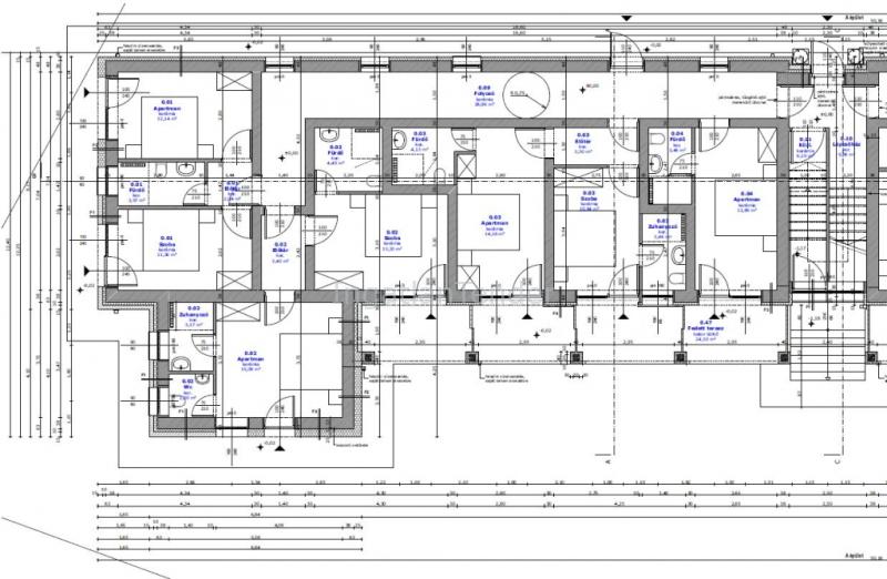
SZERETNÉ KIVÁLÓ HELYRE TENNI A PÉNZÉT? ️ NEM CSUPÁN TELEK – EGY AZONNAL KIVITELEZHETŐ APARTMANHÁZ PROJEKT! ️ 1 év áll még rendelkezésre a kivitelezéshez! PÁRATLAN SZÉPSÉGŰ TERÜLETEN! KIVÁLÓ, ÉRTÉKÁLLÓ BEFEKTETÉSI LEHETŐSÉG! A Balaton-felvidék kellős közepén, turisztikailag az egyik legizgalmasabb vidékén, 3 km-re a Balatontól, a Dörgicsei-medencében helyezkedik el ez a kivételes telek. ️ Dörgicse és környéke kiváló infrastruktúrával rendelkezik. A faluban Millenniumi emlékpark és három Árpád-kori romtemplom is található. ️ A lélegzetelállító balatoni panoráma tökéletes a gyalogosoknak és a kerékpárosoknak egyaránt. A borászat mellett a falu márciustól késő őszig számos értékőrző programot kínál. ♂️ Így teret ad a falusi turizmusnak és az idegenforgalomnak! Érvényes építési engedéllyel akár azonnal kivitelezhető, de 3 részletben is megépíthető! Paraméterek: Telek: 3494 nm Építési övezet: /Lf-4/ ️ Max. beépíthetőség: 30% Min. zöldterület: 60% Max. épületmagasság: 4,20 m Tervek alapján építhető: Földszint: 8 apartman (5 db 2x2 ágyas, 3 db 2 ágyas) Tetőtér: 11 apartman (8 db 2x2 ágyas, 3 db 2 ágyas) ♿ Földszinti szobák akadálymentesek ️ Panzió kapacitása (A és B épületben): 62 fő 1 személyzeti apartman 1 VIP apartman (4 fő részére) Hasznos alapterület: 1374 nm ♀️ Wellness rész Kültéri medence Minden dokumentációval rendelkezünk! Várom hívását, mutatom! GDN ID: 342441 SEGÍTÜNK KIIGAZODNI A JELENLEGI ÁLLAMI TÁMOGATÁSOK, KEDVEZŐ HITEL LEHETŐSÉGEK DZSUNGELÉBEN! A lakásvásárlók 70 százaléka nem tudja milyen támogatásokra jogosult (pl. jelzálog elengedés, ÁFA visszaigénylés stb.), így millióktól esik el. Ezért ajánljuk BANKFÜGGETLEN hitelcentrumunk, ami minden elérhető bank és hitelintézet ajánlatát versenyezteti az Ön kedvéért, ráadásul DÍJMENTESEN. Önnek nincs más dolga, mint elbeszélgetni munkatársunkkal, aki a hallott információk alapján kiválasztja a legmegfelelőbb ajánlatokat, hogy Ön hosszú távon is a legjobb konstrukciót kaphassa. A legjobb ajánlatokból végül Ön választhatja ki a nyertest. Munkatársaink sokéves szakmai tapasztalattal várják Önt, előre egyeztetve akár a normál munkaidő után is. |


