Eladó Lakás, Szeged
Cím | |||
| Magyarország, Csongrád, 6725 Szeged | |||
Épület | |||
| Építési év | 2027 év | Építési mód | Tégla |
Műszaki adatok | |||
| Emelet | Földszint | Fűtés | Hőszivattyú |
| Komfort típus | Dupla komfort | ||
Általános adatok | |||
| Közös költség | 10000 Ft | Parkolás | Teremparkoló |
Helyiségek | |||
| Szobaszám | 3 | ||
Leírás | |||
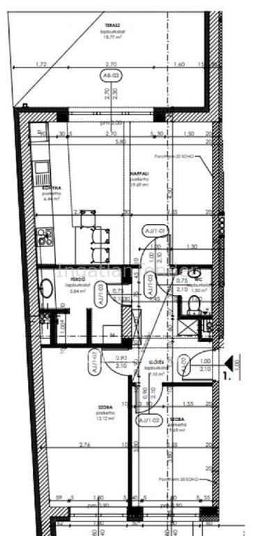
Szeged, Móraváros, 72,77 m2-es, 3 szobás, földszinti, nagy teraszos, újépítésű téglalakás, tulajdonos-kivitelezőtől, 20% kezdő befizetéssel eladó. A kulcsrakész átadás tervezett időpontja: 2027.06.30. A lakásban amerikai konyhás nappali, 2 szoba, fürdőszoba, wc és egy nagy belső udvari terasz található. A szobák laminált parketta-, a többi helyiség járólap burkolatot kapnak. Az otthon melegét hőszivattyús fűtés biztosítja. A lakáshoz opcionálisan, udvari beálló, vagy garázs is vásárolható. A TIK, egyetemi épületek, klinikák és tömegközlekedési megállók mindössze pár perc sétára találhatók, ezért rendkívül kedvező lehetőség lehet, befektetők és diákok számára is. Az ingatlan megvásárlásához kedvező hitel is igényelhető, melynek intézéséhez szakszerű segítség áll a leendő vásárló rendelkezésére. Referencia szám: M296439 | |||


