Eladó Lakás, Szántód
Cím | |||
| Magyarország, Somogy, 8622 Szántód | |||
Épület | |||
| Építési év | 2023 év | Építési mód | Tégla |
Műszaki adatok | |||
| Emelet | Földszint | Fűtés | Gázkazán |
| Komfort típus | Összkomfort | ||
Általános adatok | |||
| Közös költség | 1 Ft | Parkolás | Telken parkoló |
Helyiségek | |||
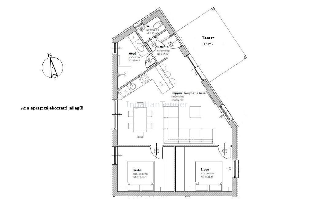
| Szobaszám | 3 | ||
Leírás | |||
Balaton Déli parton, Szántódon, 72 m2-es lakás eladó. A 66 m2 alapterületű, 12 m2 terasszal kiegészített lakás egy két szintes ház földszintjén helyezkedik el, 234 m2 saját kerttel és saját parkolóval rendelkezik. A ház a település kertvárosias, természetközeli lakóövezetében, örökpanorámával a közvetlen szomszédságában elterülő, a Balatoni Nemzeti Park részét képező területre, 500 méterre a Balatontól. Az ingatlan hőszigetelt, fűtését kombi gázkazán biztosítja, amit padlófűtés és hűtő-fűtő klíma egészít ki, a nyílászárókon elektromos távirányítós redőny, szúnyogháló. Kiváló lehetőség akár állandó lakhatásra akár nyaralásra, de befektetésnek, kiadásra is tökéletes megoldás. A Balaton-part és strandolási lehetőség, a Balaland 5* szálloda és élményfürdő gyalog 10 perc, a Szántódpusztai Majorság autóval pár perc távolságra található, így a pihenés számos módja könnyen elérhető minden korosztály számára. A lakáshoz tartozó parkoló ára 3 M Ft, amit nem tartalmaz a hirdetési ár. Bővebb információért vagy a többi elérhető lakással kapcsoltban keressen telefonon! M286580 92900000 Ft Referencia szám: M286580 | |||


