Eladó Lakás, Miskolc
Cím | |||
| Magyarország, Borsod-Abaúj-Zemplén, 3525 Miskolc Patak utca | |||
Épület | |||
| Építési év | 1970 év | Építési mód | Panel |
Műszaki adatok | |||
| Emelet | 2 | Fűtés | Cirkó |
| Komfort típus | Összkomfort | ||
Általános adatok | |||
| Közös költség | 10000 Ft | ||
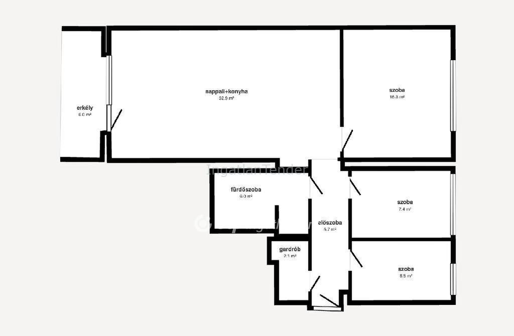
Helyiségek | |||
| Szobaszám | 3 | ||
Leírás | |||
VILÁGSZÍNVONALÚ OTTHON MISKOLC SZÍVÉBEN, AHOL A LUXUS ALAPFELSZERELTSÉG ! Ez az ingatlan a világ bármelyik pontján megállná a helyét, hiszen a legmagasabb nemzetközi sztenderdeknek megfelelő minőségben született újjá Miskolc abszolút belvárosában, a Patak utcában, a Széchenyi utcától és a nyüzsgő sétálóutcától mindössze pár lépésre. A minden részletében teljes körűen felújított, különleges atmoszférájú otthon bátran kijelenthetően a környék egyik legfantasztikusabb ingatlana, melynek belső kialakítása során a legmagasabb szakmai színvonal volt az irányadó. A lakberendező által megálmodott tágas amerikai konyhás nappalit és a három külön nyíló hálószobát egy Magyarországon magasan jegyzett asztalosmester által tervezett és készített konyhabútor ékesíti, mely gyakorlatilag milliméter pontos illesztésekkel készült. A konyha teljes körűen felszerelt, vadonatúj, garanciális konyhagépekkel rendelkezik, köztük egy felső kategóriás, érintés nélküli vezérléssel és távirányítóval rendelkező páraelszívóval, melyek még soha nem voltak használatban, így az új lakónak a főzés azonnal élménnyé válik. A lakás egyik legfőbb ékköve a hatalmas méretű, több mint 6 nm-es erkély, amely tágas teret biztosít a pihenéshez és tovább növeli a lakók komfortérzetét. Az ingatlan műszaki állapota abszolút kifogástalan és jövőbiztos, hiszen a teljes körűen, garanciálisan kicserélt víz- és villanyvezetékek mellett a fűtésről és a melegvíz-ellátásról egy vadonatúj, garanciális 24 kW-os Bosch kombi gázcirkó kazán gondoskodik, a nyári hőségben pedig egy vadonatúj, prémium kategóriás klímaberendezés biztosítja a hűvöset. A kimagasló minőségű, garanciális hidegburkolatokat egy okleveles mesterember fektette le csúcsminőségben, a fürdőszobában pedig zuhanyzó és szabadon álló kád is helyet kapott, szintén garanciális, prémium szaniterekkel és beépített tárolókkal. Az elhelyezkedés páratlan infrastruktúrát és kényelmet nyújt: közvetlen szomszédságban található a Nemzeti Színház, gyalogosan pár percre pedig posta, modern gyógyszertár, dohánybolt és lottózó is elérhető. A mindennapi bevásárlást számos kisebb üzlet, pékség és élelmiszerbolt segíti, de a belváros lüktetéséhez hozzátartoznak a közeli hangulatos éttermek, kávézók és egyéb vendéglátóhelyek, valamint a Packeta átvevőhely is. A lakás kényelmét tovább fokozzák a vadonatúj, kiváló hang- és hőszigetelt, redőnnyel felszerelt műanyag nyílászárók, melyeknek köszönhetően a központi lokáció ellenére is teljes nyugalom és csend uralkodik az otthonban. A liftes épület második emeleti elhelyezkedése minden korosztály számára ideális, a lakáshoz tartozó saját udvari beálló pedig valódi kincs és biztonságos megoldás a belváros szívében. Ez az ingatlan az élő bizonyíték arra, hogy a minőségi, garanciális kivitelezés és a tökéletes lokáció találkozása valódi értéket teremt. Érdeklődését és hívását a hét minden napján szívesen fogadom: hétfőtől szombatig 7:00 és 21:00 óra között, vasárnap pedig 8:00 és 20:00 óra között várom megtisztelő megkeresését. OTP Banki hátterünknek köszönhetően finanszírozási igényekben (pl. Otthon Start Hitelprogram , Babaváró, Falusi CSOK, CSOK Plusz, Lakáshitel, Személyi kölcsön stb.), illetve biztosítások tekintetében is díjmentesen, soron kívüli ügyintézéssel segítem ügyfeleim! Kérem tekintse meg, virtuális sétámat is. Hívása során hivatkozzon az M323613 referenciaszámra! | |||


