Eladó, lakás, Hajdú-Bihar, Debrecen
Cím | |||
| Magyarország, Hajdú-Bihar, 4025 Debrecen - Belváros | |||
Épület | |||
| Altípus | Tégla | Építési év | 2026 év |
Műszaki adatok | |||
| Ingatlan belső állapota | Új építésű | Fűtés | Távfűtés egyedi méréssel |
Általános adatok | |||
| Kilátás | Kertre néző | Tájolás | dél |
Helyiségek | |||
| Szobaszám | 3 | ||
Leírás | |||
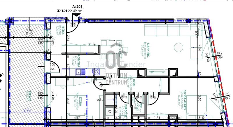
Debrecen abszolút Belvárosában, de mégis csendes övezetben, modern, egyedi megjelenésű, liftes társasház épül a földszinten 4 üzlettel és a -1 szinten teremgarázs parkolókkal. A lakások között vannak földszinti kertkapcsolatosak, és penthouse jellegűek is. A projekt tervezésénél, az elsődleges szempont az otthonos, élhető lakások építése volt. Az épületben helyet kapó lakások mindegyike egyedileg kialakított tágas terekkel, jó funkcionalitással és nagy méretű loggiákkal, teraszokkal rendelkezik. A lakások minőségi anyagok felhasználásával készülnek, a legkorszerűbb 3 rétegű üvegezésű ablakokkal, hőszivattyús klímával ellátottak. A belvárosban található ingatlan pár perc sétára található a Nagytemplomtól, a Piactól és a Bevásárló központoktól. Egyéb információért hívjon bizalommal. Ez a 2. emeleti lakás 92,62 nm-es, nappali-étkező-konyha +2 szobás, 22,49 nm-es terasszal. Projekt bemutatása - | |||


