Eladó Iroda, Sásd
Cím | |||
| Magyarország, Baranya, 7370 Sásd | |||
Épület | |||
| Építési év | 1970 év | ||
Műszaki adatok | |||
| Emelet | Földszint | ||
Általános adatok | |||
| Parkolás | Telken parkoló | ||
Leírás | |||
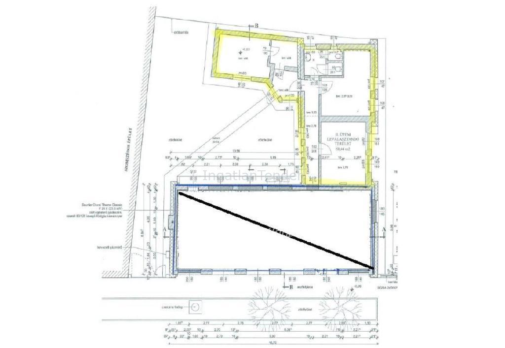
Eladó Sásdon a volt OTP fiók épülete! Két részből áll. Az utcafronti, és a hátsó mellékületből. Az utcafronti a közelmúltig bankfiókként működött. Ebből adódik, hogy minden szükséges infrastruktúrával el van látva. A fűtés épületközponti (kombi-gázcirkó kazán), radiátoros hőleadókkal, a melegvizet helyi átfolyós melegvíz termelő bojler biztosítja mindkét épületben. Utcára néző üvegportállal ellátott, nettó területe 88,9 négyzetméter. A külső nyílászárók hőszigetelt műanyag szerkezetek, a belső ajtók fából készültek, a bejárati ajtó biztonsági ajtó, acél szerkezettel. Az épületben lévő burkolatok nagyméretű greslapok, irodában padlószőnyeg, vizesblokkban és az irattárban, valamint a gépészeti terekben 30x30-as kerámia burkolat. A falak festettek, a vizes helyiségek csempézettek. 4 klíma van benne. Fontos! A pénzkiadó automata (ATM) jelenleg is üzemel és üzemelni fog az eladás után is. Természetesen az ATM költsége továbbra is a bankot fogja terhelni, egy megkötendő megállapodás értelmében. A jövendő tulajdonos ezzel a megoldással tudja megvásárolni. Mivel az ATM helyiségéből nyílik a volt bank, úgy lehetséges ezt a bejáratot bezárni, és az épület két szélén van lehetőség új bejáratot nyitni. Két alaprajz mutatja azt az épületrészt. A szürke csak a körvonalakat, piros részletesen a helyiségeket is. A sárga alaprajz mutatja a vele egybe épült hátsó (eredetileg iroda és dokumentumtár) céljára épített szárnyat. Egy banki előírás változás miatt több mint tíz évvel esz előtt lefalazták, és nem használták. 68,4 négyzetméteres. Sem fűtve sem karbantartva nem volt. Emiatt az állaga szerint felújítandó. Az épület szerkezete rendben van. Összesen 157,3 négyzetméter az építmények területe, a bekerített telek, amin áll, 379 négyzetméter. Autóval be lehet állni az udvarba. 1970-ben épült téglából. Felhasználható irodának, szolgáltatás, vagy gyártás céljára. Referenciaszám: M300170 27510000 Ft Referencia szám: M300170 | |||


