Eladó Iroda, Nyírmada
Cím | |||
| Magyarország, Szabolcs-Szatmár-Bereg, 4564 Nyírmada | |||
Épület | |||
| Építési év | 1970 év | ||
Műszaki adatok | |||
| Emelet | Földszint | ||
Általános adatok | |||
| Parkolás | Telken parkoló | ||
Leírás | |||
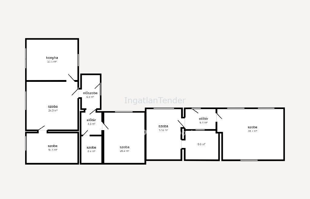
Eladó üzlethelyiség - lakás Nyírmada központjában. Az ingatlan 1970-ben épült tégla falazattal, a tetőn cserép héjazat. Az épület egy része irodaként üzemelt, egy másik része lakásként funkcionált. Az ingatlan teljes mértékben közművesített (víz, gáz, villany, csatorna). A fűtést gánzkonvektor biztosítja több helyiségben. Valamint 3 fázisú hálózat is ki lett alakítva. A 313 m2-es telken az ingatlan alatt található két aknával ellátott garázs. Az épület előtt egy kb. 40m2 területű fedett terasz lett kialakítva. A környék viszonylag nyugodt, de frekventált része a településnek, így ideális lehet irodának, üzlethelyiségnek, vagy igény szerint lakásnak. A fedett terasz alatt stand vagy kirakodó pultok is elhelyezhetőek. Étterem esetében asztalok, székek, pultok. Befektetőknek, vállalkozóknak kifejezetten sok lehetőséget nyújthat némi felújítással. Referencia szám: M305191 Pénzügyi tanácsadással, hitel ügyintézéssel (FalusiCSOK, CSOKPlusz, Babaváró, kedvezményes lakáshitel) segítjük ügyfeleinket, melyről részletes tájékoztatást adunk OTP Ingatlanpont, és OTP Pénzügyi Pont irodáinkban. 18000000 Ft Érd.: Marczi Dániel Email: Tél.: Referencia szám: M305191-ITE | |||


