Eladó, ipari terület, Pest, Solymár
Cím | |||
| Magyarország, Pest, 2083 Solymár | |||
Épület | |||
| Építési év | 2023 év | ||
Leírás | |||
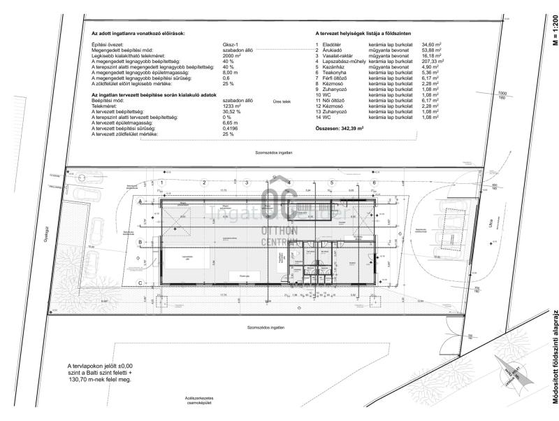
Eladásra kínálunk Solymár felé vezető,rendkívül forgalmas fő út(Bécsi út) mentén,ipari és kereskedelmi övezetben,1233nm-es, teljesen sík telken elhelyezkedő,elképesztő adottságokkal bíró,br.550nm alapterületű épület komplexumot-kereskedelmi csarnok ingatlant. Az átmenő forgalom óriási,több települést és vidéket is valamint maga a Fővárost is ezen út mentén lehet elérni. Az épület 2023-ban épült,modern, a mai kor csúcs műszaki tartalmával, rendkívül igényes kivitelben. Ez év végére készül el, a vételár a teljesen befejezett árra vonatkozik. Jelenleg még a burkolatok és a szaniterek választhatóak. Található benne eladótér,iroda,szociális helyiség,valamint nagyméretű,akár szeparálható raktár helyiség is. Az emeleten 140nm-es egyben helyiség, ami akár több irodát vagy tárgyalót is magában foglalhat. Elől, hátul, oldalt több bejárattal is rendelkezik,a személyi bejárás és az anyagmozgatás szempontjait figyelembe véve került kialakításra. A telek utcafronti szélessége igen kényelmes, itt található a közel 7m fesztávú automata úszókapu is. Az ingatlan besorolása GKSZ, Ipari és Kereskedelmi tevékenység végzésére alkalmas. Szomszédságában kereskedelmi egységek, telephelyek a buszmegálló 100méterre található. Felülete teljesen sík, ipari viacolorral burkolt, minden oldalról újonnan elkerített. A főbb műszaki paraméterek: -Komplett külső hőszigetelés -Hőszivattyús padló fűtés illetve faincol -46 Kw-os napelem rendszer,102db panel -3X63 A -2 db ipari, automata, szekcionált kapu -ipari,látszóbeton padló -távfelügyelethez bekötött riasztó rendszer kamerával Az ingatlan adottságából és elhelyezkedéséből többek közt tökéletes kereskedelmi, szolgáltató vagy ipari jellegű tevékenység végzésére. | |||


