Eladó, ház, Vas, Rábapaty
Cím | |||
| Magyarország, Vas, 9641 Rábapaty | |||
Épület | |||
| Építési év | 2023 év | ||
Műszaki adatok | |||
| Ingatlan belső állapota | Új építésű | Gáz | Van |
| Villany | Van | Csatorna | Van |
Általános adatok | |||
| Tájolás | délnyugat | ||
Helyiségek | |||
| Szobaszám | 5 | ||
Leírás | |||
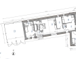
Ha modern, kényelmes vidéki életre vágyik, ide csak költözni kell ! Rábapatyon, Sárvártól 7 km-re eladó újszerű, 4 szobás+ amerikai konyhás családi ház, parkosított , medencével ellátott 2476 nm-es telken. A település fekvése miatt közkedvelt. Az M86 gyorsforgalmi út és Sárvár rövid autóúttal elérhető. Sopron és Szombathely 30-50 km távolságra. Helyben iskola ,óvoda, orvosi ellátás szolgálja az itt élők mindennapjait. Az utcafronti L alakú épület 1950 -ben épült, téglából. Jelenlegi tulajdonosai- generál kivitelezők-tégláig visszabontották, teljesen új tetőszerkezetet kapott, födém 20 cm ásványgyapottal szigetelt. Külső szigetelése 15 cm . Nyílászárók 3 rétegű hang-,hőszigetelt üveggel ellátott műanyagok, az aljzat utólagos hőszigetelése megvalósult. Fűtését energiatakarékos Vaillant hőszivattyú látja el padlófűtés hőleadással. Hálószobák burkolata laminált padló, a többi helyiség kerámia lappal borított. Víz, csatorna, villanyvezeték rendszer kiépítése teljesen új. 3 hálószoba tágas, kényelmes lakóteret biztosít. Konyha-nappali-étkező egy légtérben kényelmesen megtarthatók a családi rendezvények. Fürdőszoba tágas, kád és épített zuhany is használható. A konyha bútorozva gépesítve a vételár részét képezi ! Kialakításra került egy vendégszoba kapcsolódó vizes blokkal ami akár vállalkozás működtetésére is kiváló lehetőséget teremt. 2 bejáratú, lakásból és udvarról is megközelíthető. Terasz illetve az udvar térkővel burkolt, jelenleg folyamatban vannak ezen munkálatok. Az udvaron 2 állásos garázs áll rendelkezésre. Kert -a fotókon látható- parkosított, gondozott zárt kerítéssel körülvett minden irányból. 7x3 méteres medence teljesen felszerelt gépházzal nyújt nyáron kellemes lazítást tulajdonosainak. Helyett kapott a medence közelében egy vizesblokkal felszerelt nyárilak, amely a pihenést ,kerti sütögetést, vendégek elszállásolását teszi lehetővé. A településen falusi CSOK és egyéb hiteltermékek igénybe vehetők! Projekt bemutatása Ha modern, kényelmes vidéki életre vágyik, ide csak költözni kell ! Rábapatyon, Sárvártól 7 km-re eladó újszerű, 4 szobás+ amerikai konyhás családi ház, parkosított , medencével ellátott 2476 nm-es telken. A település fekvése miatt közkedvelt. Az M86 gyorsforgalmi út és Sárvár rövid autóúttal elérhető. Sopron és Szombathely 30-50 km távolságra. Helyben iskola ,óvoda, orvosi ellátás szolgálja az itt élők mindennapjait. Az utcafronti L alakú épület 1950 -ben épült, téglából. Teljes átépítése zajlik, kulcsrakész állapot 2024. áprilisra várható. Jelenlegi tulajdonosai tégláig visszabontották, teljesen új tetőszerkezetet kapott, födém 20 cm ásványgyapottal szigetelt. Külső szigetelése 15 cm . Nyílászárók 3 rétegű hang-,hőszigetelt üveggel ellátott műanyagok, az aljzat utólagos hőszigetelése megvalósult. Fűtését energiatakarékos Vaillant hőszivattyú látja el padlófűtés hőleadással. Hálószobák burkolata laminált padló, a többi helyiség kerámia lappal borított. Víz, csatorna, villanyvezeték rendszer kiépítése teljesen új. 3 hálószoba tágas, kényelmes lakóteret biztosít. Konyha-nappali-étkező egy légtérben kényelmesen megtarthatók a családi rendezvények. Fürdőszoba tágas, kád és épített zuhany is használható. A konyha bútorozva gépesítve a vételár részét képezi ! Kialakításra került egy vendégszoba kapcsolódó vizes blokkal ami akár vállalkozás működtetésére is kiváló lehetőséget teremt. 2 bejáratú, lakásból és udvarról is megközelíthető. Terasz illetve az udvar térkővel burkolt, jelenleg folyamatban vannak ezen munkálatok. Az udvaron 2 állásos garázs áll rendelkezésre. Kert parkosított, gondozott zárt kerítéssel körülvett minden irányból. 7x3 méteres medence teljesen felszerelt gépházzal nyújt nyáron kellemes lazítást tulajdonosainak. Helyett kapott a medence közelében egy vizesblokkal felszerelt nyárilak, amely a pihenést ,kerti sütögetést, vendégek elszállásolását teszi lehetővé. A településen falusi CSOK és egyéb hiteltermékek igénybe vehetők! Közművek: víz,villany,gáz,csatorna | |||


