Eladó Ház, Tengelic

Pénzügyek
(tájékoztató példa, nem minősül ajánlatnak)

Vételár
21 000 000 Ft

25% önerő
5 250 000 Ft

Lakáskölcsön (piaci)
15 750 000 Ft

Törlesztőrészlet 20 éves futamidővel 154 108 Ft

Az itt látható számok, jelen piaci körülmények között általánosan elérhető lehetőségek közül kerültek kiemelésre, így nem ajánlattétel, minden esetben pontos minősítés szükséges.
Cím
Magyarország, Tolna, 7054 Tengelic
Épület
AltípusCsaládiÉpítési év1960 év
Építési módVegyes
Műszaki adatok
FűtésHázközponti fűtésKomfort típusÖsszkomfort
VízTelkenGázTelken
VillanyTelken
Általános adatok
ParkolásTeremparkoló
Helyiségek
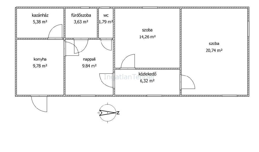
Szobaszám3
Leírás

2 szobás, nappalis ház eladó Tengelicen a szőlőhegyen! 3638 négyzetméter sík terület tartozik hozzá, amely 2 részből áll. 1251 négyzetméter, amin a ház áll garázsokkal, és közvetlenül mellette 2387 négyzetméter művelési ág alól kivett beépítetlen terület. A ház kívülről, belül jó állapotban van, egyes részekre ráfér egy kis felújítás. Központi fűtése van, egy vegystüzelésű kazánnal. A gázcsonk, az udvarban a kerítésen belül van. Víz, szennyvíz, villany van a házban. Megközelíteni a Dózsa György utca felől lehet. Kellemes csendes helyen van. Bankcsoportunk, Magyarország piacvezető pénzintézete 73 év szakértelemmel áll érdeklődő Ügyfeleink rendelkezésére. Használja ki a még elérhető családtámogatási rendszert és legyen kedvező feltételek mellett a kínált lakás tulajdonosa. Teljes körű szolgáltatást nyújtunk: pénzügyi tanácsadás, magánszemélyeknek és vállalkozásoknak, állami támogatások igénylése, bérbeadás, fenntartás, tovább értékesítés. Hívjon fel, hogy a fejlesztés elemzése során elkészített anyagainkat megoszthassuk Önnel! Referenciaszám: M282634

21000000 Ft

Referencia szám: M282634

Eladó — Ház
  • Alapterület:66 m2
  • Telekterület:3638 m2
  • Szobaszám:3
  • Hirdetés #:473040
  • Eladási ár
  • 21 000 000 Ft
    318 182 Ft/m2
Hirdető adatai

Fotózza le az alábbi kódot a telefonjával és más eszközön is láthatóvá válik a hirdetés.

Ingatlant keres?

Regisztráljon keresőként, akár kiemelésekkel

Használd fizetős szolgáltatásainkat!

Hasonló Hirdetések
^ Fel