Eladó Ház, Szentes

Pénzügyek
(tájékoztató példa, nem minősül ajánlatnak)

Vételár
23 000 000 Ft

25% önerő
5 750 000 Ft

Lakáskölcsön (piaci)
17 250 000 Ft

Törlesztőrészlet 20 éves futamidővel 168 784 Ft

Az itt látható számok, jelen piaci körülmények között általánosan elérhető lehetőségek közül kerültek kiemelésre, így nem ajánlattétel, minden esetben pontos minősítés szükséges.
Cím
Magyarország, Csongrád, 6600 Szentes
Épület
AltípusCsaládiÉpítési év1940 év
Építési módVegyes
Műszaki adatok
FűtésHázközponti fűtésKomfort típusÖsszkomfort
VízTelkenGázTelken
VillanyTelken
Helyiségek
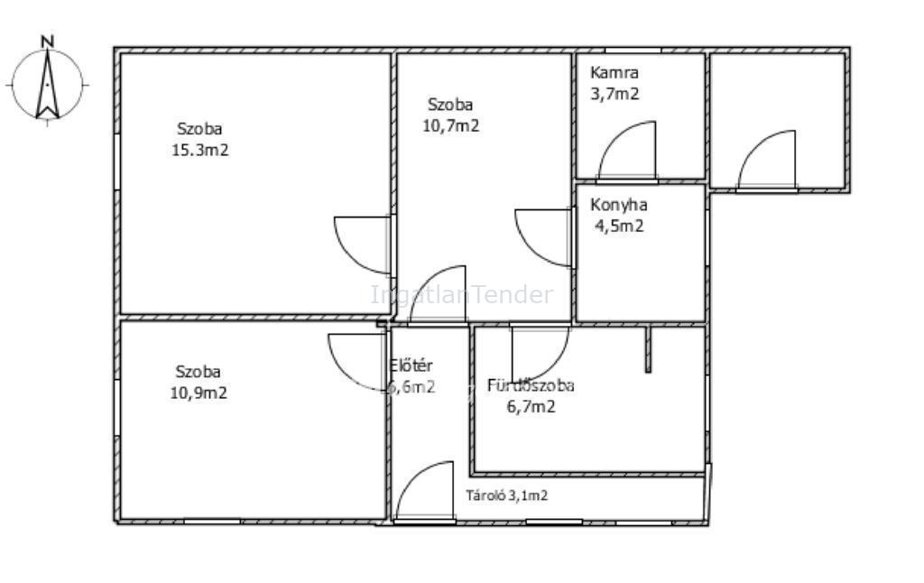
Szobaszám3
Leírás

***Kizárólag az OTP Ingatlanpontnál!!*** Eladásra kínálom Csongrád-Csanád Vármegyében Szentes Berekhát városrészen egy 65 négyzetméteres házat. Csendes utcában, 720 m2 telek, 3 szobás, összkomfortos ingatlan. A meleget vegyes tüzelésű kazán , melegvizet villanybojler biztosítja. Vastagon alábetonozott mindenhol. Nyílászárói fából vannak. Tartozik hozzá nyári konyha és sok tároló helység. Udvara rendezett. Ne feledjétek, az OTP Ingatlanpont kedvezményes pénzügyi konstrukciókkal áll rendelkezésére! VIP-szolgáltatást nyújtunk az OTP-hiteltermékek ügyintézésében. Jogi és pénzügyi segítséget nyújtanak szakértőink, hogy az adásvétel folyamata gördülékeny legyen. Amennyiben a vételár a kérdés, és azt hiszed még nincs meg az összeg a leendő új otthonodra, lehet hogy még is rendelkezésére áll a vételár csak még nem is tudod? Tisztában vagy valóban az anyagi lehetőségeiddel? Az áthidaló megoldásokkal? Esetleg csak az az akadály, hogy nem adtad el még a saját ingatlanod? Nem gond, a tulajdonosaink, eladóink szívesen megvárnak, segítünk a gyors értékesítésben is. Ne maradj le a vételről, ha már megtaláltad a megfelelő új otthont! A vevők is nálunk vannak és lehet az Te ingatlanodra várnak?! Tudj meg többet, hívj bizalommal! Eladó ingatlanod van? Nincs vevőd? Hívj és segítek az eladásban is.

Referencia szám: M288476-ITE

Eladó — Ház
  • Alapterület:65 m2
  • Telekterület:720 m2
  • Szobaszám:3
  • Hirdetés #:468380
  • Eladási ár
  • 23 000 000 Ft
    353 846 Ft/m2

Fotózza le az alábbi kódot a telefonjával és más eszközön is láthatóvá válik a hirdetés.

Ingatlant keres?

Regisztráljon keresőként, akár kiemelésekkel

Használd fizetős szolgáltatásainkat!

Hasonló Hirdetések
^ Fel
Tipp
Regisztráljon oldalunkon, mint kereső és ezzel célzott a feltételeknek megfelelő ingatlanokról kaphat ajánlatokat.
Nem szeretnék több tippet