Eladó Ház, Szendrő
Cím | |||
| Magyarország, Borsod-Abaúj-Zemplén, 3752 Szendrő Újélet utca | |||
Épület | |||
| Altípus | Családi | Építési év | 1955 év |
| Építési mód | Vegyes | ||
Műszaki adatok | |||
| Fűtés | Konvektor | Komfort típus | Összkomfort |
Általános adatok | |||
| Parkolás | Telken parkoló | ||
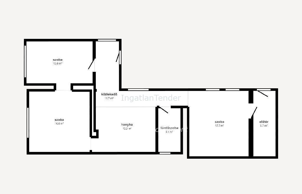
Helyiségek | |||
| Szobaszám | 3 | ||
Leírás | |||
zendrő település csendes utcájában kínálok eladásra egy 82 nm-es, tehermentes, 3 szobás családi házat, amely egy 1404 nm-es telken helyezkedik el. Az ingatlan 1955-ben épült, falazata tégla, vályog és szilikát kombinációjából készült. A külső falak részben 5 cm nikecel szigeteléssel ellátottak. A tető jó állapotú, a nyílászárók hagyományos fa kivitelűek. Az otthon melegét gázkonvektorok és kandalló biztosítja. A ház elrendezése praktikus: három különnyíló szoba, konyha, előtér és közlekedő található benne. Az ingatlan két bejárattal rendelkezik, ami akár két generáció együttélésére is lehetőséget nyújt. A főépület mellett több melléképület is van: nyárikonyha, benne fürdőszobával, garázs, fedett kocsibeálló. A ház mögött tágas kert, mely kiválóan alkalmas pihenésre, kertészkedésre vagy állattartásra A nagy telek mérete lehetőséget biztosít további gazdálkodásra, kertművelésre, gyümölcsfák ültetésére. Az ingatlan tehermentes, így azonnal birtokba vehető. Banki háttérrel, teljes körű ügyintézéssel segítem a vásárlást! Otthon Start Hitelprogram, CSOK Plusz falusi csok és lakáshitel ügyintézésben is támogatást nyújtok díjmentesen! Érdeklődés esetén hivatkozzon M312514 azonosítási számra. | |||


