Eladó Ház, Ságvár
Cím | |||
| Magyarország, Somogy, 8654 Ságvár | |||
Épület | |||
| Altípus | Családi | Építési év | 1960 év |
| Építési mód | Tégla | ||
Műszaki adatok | |||
| Fűtés | Egyéb | Komfort típus | Komfortos |
| Víz | Nincs | Villany | Telken |
Általános adatok | |||
| Parkolás | Telken parkoló | ||
Helyiségek | |||
| Szobaszám | 2 | ||
Leírás | |||
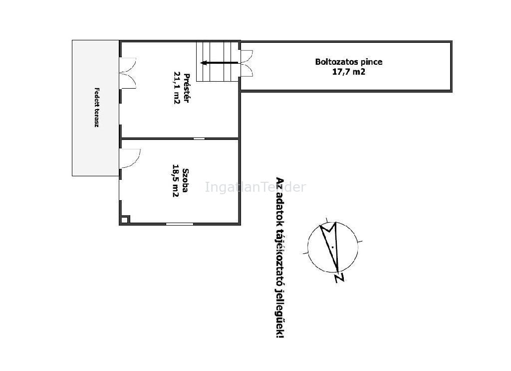
Eladásra kínálunk a Balaton déli partjához közeli, Siófoktól 8 km-re, Ságvár szőlőhegyén egy karbantartott, 40 m2-es présházat, amely kiváló állapotú, kényelmes, fűthető pihenőszobával rendelkezik. A préstérből nyílik egy 18 m2-es, boltozatos pince, ami tökéletesen alkalmas a telken megtermelt gyümölcsök és bor tárolására. Az ingatlan egy 5503 m2-es, zártkerti besorolású domboldali telken helyezkedik el, ahonnan gyönyörű tájpanoráma látható. A telek két ellentétes irányból is megközelíthető, könnyen elérhető bármely évszakban. A villany bevezetésre került az épületbe. A telken számos termő gyümölcsfa és művelt szőlőültetvény található. A növények öntözése fúrt kútról oldható meg. Az ingatlan kiváló választás lehet hétvégi pihenésre vagy kisebb gazdálkodás számára is! Bővebb információért, megtekintésért keressen telefonon! Referencia szám: M309396 | |||


