Eladó, ház, Pest, Solymár
Cím | |||
| Magyarország, Pest, 2083 Solymár | |||
Épület | |||
| Altípus | Ikerház | Építési év | 2025 év |
Műszaki adatok | |||
| Ingatlan belső állapota | Új építésű | Fűtés | Villanyfűtés |
| Villany | Van | Csatorna | Van |
Általános adatok | |||
| Tájolás | délkelet | ||
Helyiségek | |||
| Szobaszám | 4 | ||
Leírás | |||
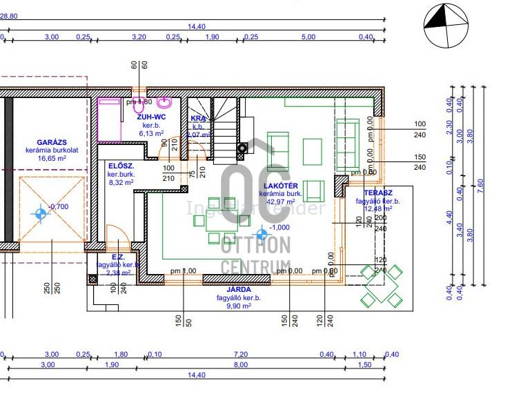
Solymár legszebb részén Györgyhegyen, új építésű ikerház, használatba vételi engedéllyel ! # központi elhelyezkedés # átmenő forgalomtól mentes, gyönyörű környezet # új építés # garázs # nappali-étkező-konyha # 3 hálószoba # 2 fürdőszoba # rendezett kert # kulcsrakész állapot # beépített bútorokkal Solymár központi részén kínálom megvételre ezt a frissen elkészülő ikerházat. Az ár tartalmazza a teljes befejezési költségeket, térkövezést, kaput, stb. Részletekért hívjon még ma. Teljeskörű ügyintézéssel, banki háttérrel, várom a hívását a hét minden napján. Közművek: víz,villany,csatorna | |||


