Eladó Ház, Ostoros
Cím | |||
| Magyarország, Heves, 3326 Ostoros | |||
Épület | |||
| Altípus | Ikerház | Építési év | 2025 év |
| Építési mód | Tégla | ||
Műszaki adatok | |||
| Fűtés | Cirkó | Komfort típus | Összkomfort |
| Víz | Van | Gáz | Van |
| Villany | Van | Csatorna | Van |
Általános adatok | |||
| Parkolás | Telken parkoló | Tájolás | délnyugat |
Helyiségek | |||
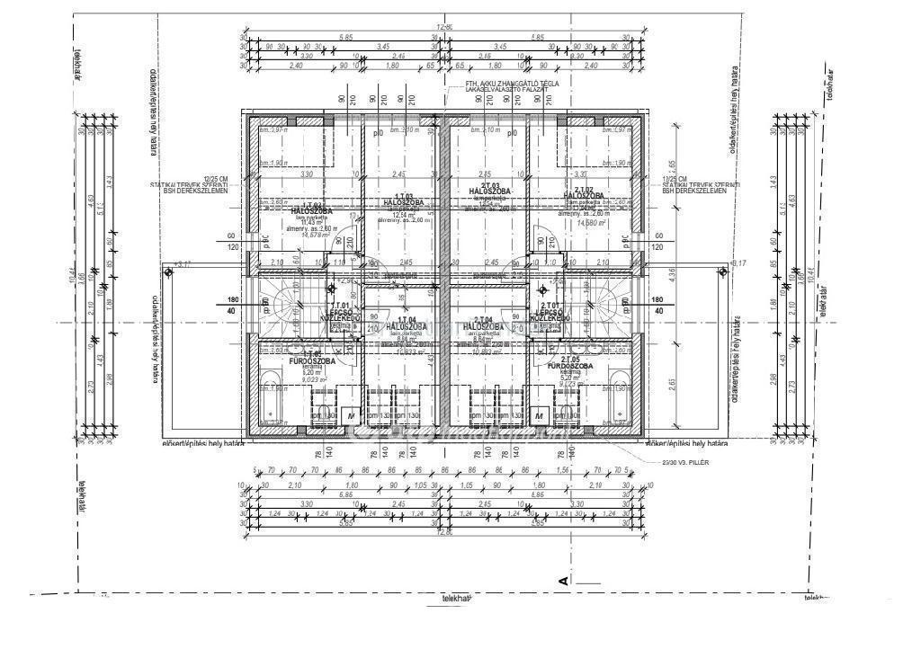
| Szobaszám | 3 | ||
Leírás | |||
Heves megye, Ostoros, lakóparkban eladó egy 103 m2-es, modern, újépítésű ikerház, 350 m2-es telken. A település csendes, rendezett részén található, kiváló választás családoknak vagy befektetésnek is. Az ingatlan praktikus elrendezésű, világos terekkel és korszerű műszaki megoldásokkal rendelkezik. Minőségi anyaghasználat, energiatakarékos megoldások és modern stílus jellemzi. Az ingatlan helyiségei: amerikai konyhás nappali, 3 szoba, 2 fürdőszoba, mosókonyha, 20 m2-es terasz, 16 m2-es kocsibeálló, 350 m2-es, saját használatú kert. Fűtés rendszer: gáz cirkó radiátoros fűtés, földszinten padlófűtéssel. Konyhabútor és konyhai gépek: bruttó 1,5 M Ft értékben a lakás ára tartalmazza Átadás: 2026 június. | |||


