Eladó Ház, Orfű
Cím | |||
| Magyarország, Baranya, 7677 Orfű Vadvirág utca | |||
Épület | |||
| Altípus | Ikerház | Építési év | 2024 év |
| Építési mód | Tégla | ||
Műszaki adatok | |||
| Fűtés | Cirkó | Komfort típus | Összkomfort |
| Víz | Telken | Gáz | Telken |
| Villany | Telken | ||
Általános adatok | |||
| Parkolás | Telken parkoló | ||
Helyiségek | |||
| Szobaszám | 2 | Félszobák száma | 2 |
Leírás | |||
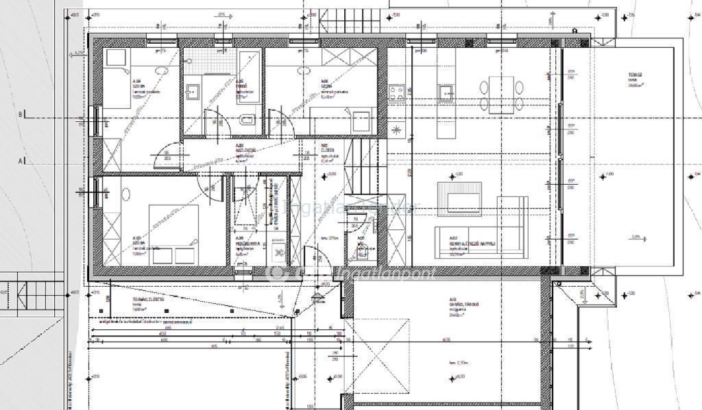
Elhelyezkedés: Baranya vármegyében, a Mecsek lábánál, Orfűn, a Kistó közelében, új építésű, ikerház lakásai eladók! A csendes utca a domboldalban található, így a nyugodt lakhatás, de akár a biztos befektetés és a gyönyörű kilátás is garantált. Telek adottságai: * 1054 m2-es * összközműves * körbe kerített Lakás jellemzői: * 101 m2 lakóterű * egy szintes * várhatóan 2024. augusztusban kerül átadásra * 25 m2-es önálló garázs is tartozik hozzá * 29 m2-es terasz kapcsolódik az amerikai konyhás étkező-nappalihoz * 3 hálószoba * 1 fürdőszoba wc-vel * külön wc * mosókonyha * a helyiségek elrendezése, mérete az alaprajzon látható * fűtés, meleg víz gázkazánnal, radiátorokkal kerül kivitelezésre * a lakásoknak nincs közös fala, a két lakás között a két garázs helyezkedik el, ezzel is komfortosabbá téve az otthon tartózkodást Extrák: * A vételár magába foglalja a beépített fürdőszoba és konyhabútorokat, beépített gépeket, szanitereket, hideg-meleg burkolatokat. Önnek csak a bútorait kell hozni, az ingatlan költözhető állapotban kerül átadásra! * Az ikerház másik felével együtt is megvásárolható! Megvásárlás: Teljeskörű adás-vételi ügyintézéssel, igény esetén kedvezményes, OTP Bank által biztosított pénzügyi finanszírozással várom jelentkezését. Legyen ez az Ön otthona! Referenciaszám: 266158 | |||


