Eladó Ház, Nyíregyháza
Cím | |||
| Magyarország, Szabolcs-Szatmár-Bereg, 4400 Nyíregyháza | |||
Épület | |||
| Altípus | Családi | Építési év | 1980 év |
| Építési mód | Tégla | ||
Műszaki adatok | |||
| Fűtés | Cirkó | Komfort típus | Összkomfort |
| Víz | Utcában | Gáz | Utcában |
| Villany | Utcában | ||
Általános adatok | |||
| Parkolás | Teremparkoló | ||
Helyiségek | |||
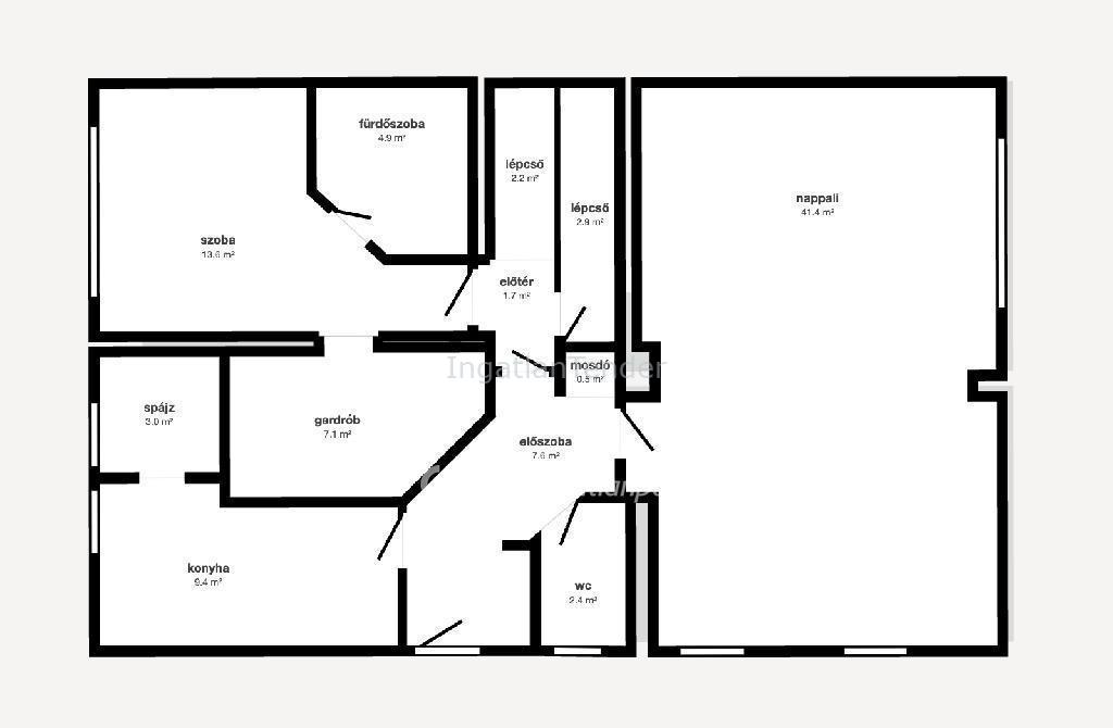
| Szobaszám | 6 | ||
Leírás | |||
Eladó egy tágas, gyönyörű kétgenerációs családi ház Nyíregyháza kedvelt, környékén. A kiváló állapotú ingatlan egy hatalmas, 1000 négyzetméteres telken fekszik, és összesen hat szoba található benne. A ház hivatalos alapterülete 300 négyzetméter, amely tágas életteret biztosít. Az alsó szinten egy nagy nappali, egy másik szoba, valamint egy kádas, dupla mosdós fürdőszoba és egy különálló WC kapott helyet. A szobák laminált padlóval és parkettával burkoltak. A kényelmes lépcsőház vezet fel az emeletre , ahol szintén szobák és egy zuhanyzós fürdőszoba került kialakításra. Ingaltan pince szinttel is rendelkezik melyben van egy mosó szoba egy külön gardrób került kialakításra és nagy közösségi tér is van Az ingatlanhoz tartozik egy nagyméretű, négyállásos garázs is, mely tárolásra vagy vállalkozásra is kiváló. A ház azonnal költözhető állapotban van. OTP Banki hátterünknek köszönhetően finanszírozási igényekben (pl. Otthon Start Hitelprogram, Babaváró, Falusi CSOK, CSOK Plusz, Lakáshitel, Személyi kölcsön stb.), illetve biztosítások tekintetében is díjmentesen, soron kívüli ügyintézéssel segítem ügyfeleim! Referenciaszám:M313095 Referencia szám: M313095 | |||


