Eladó ház, Mórahalom
Cím | |||
| Magyarország, Csongrád, 6782 Mórahalom Erzsébet királyné útja | |||
Épület | |||
| Altípus | Családi | Építési év | 2025 év |
| Építési mód | Könnyűszerkezetes | ||
Műszaki adatok | |||
| Fűtés | Hőszivattyú | ||
Általános adatok | |||
| Tájolás | délnyugat | ||
Helyiségek | |||
| Szobaszám | 4 | ||
Leírás | |||
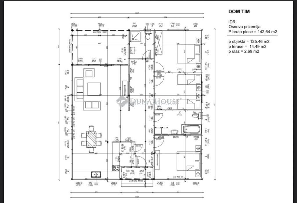
Mórahalom újépítésű városrészében 3 szoba+amerikai konyhás újépítésű ,önálló családi ház eladó!Eladó egy 2025-ben épült, modern és napfényes ingatlan Mórahalom egyik kedvelt lakóövezetében. Az ingatlan tágas, amerikai konyhás nappalival, valamint egy tágas, fedett terasszal büszkélkedhet, ami kiváló lehetőséget nyújt a pihenéshez és szabadidős tevékenységekhez egyaránt. Az épület 90 cm mély vasalt betonalappal rendelkezik mely egy sor zsalukővel emelkedik ki, vízszigeteléséről GW35-ös bitumenes lemez gondoskodik.Aljzata 10 cm-es lépésálló szigetelést kapott.Falszerkezete, fa szerkezetű kívül 15cm szigetelés,belül 12cm szigeteléssel ellátott.Födémen 30 cm-es kőzetgyapot szigetelés.Nyílászárók 3 rétegű 7 légkamrás antracit színnel, ezüst redőnnyel szúnyoghálóval.Fűtése padlófűtés mindenhol ,központi elektromos Bosh kazánnal ,de rendelkezésre áll hőszivattyús klíma is. Melegvíz ekllátásáról 100l-es lapos Atlantic villanybojler gondoskodik.Tetőszerkezete fa szeglemezes, antracit színű betoncseréppel.A kiváló infrastruktúra, a közelben lévő iskolák, boltok és orvosi rendelők mind hozzájárulnak ahhoz, hogy Mórahalom egyre inkább kedvelt célpontja legyen a családoknak és azoknak, akik nyugodt környezetre vágynak. Ne hagyja ki ezt a kiváló lehetőséget, fedezze fel Mórahalom nyújtotta életminőséget ebben a modern, 2025-ben épült otthonban!Amennyiben megtetszett önnek az ingatlan várom megtisztelő hívását a hét bármely napján! | |||


