Eladó, ház, Hajdú-Bihar, Debrecen
Cím | |||
| Magyarország, Hajdú-Bihar, 4031 Debrecen | |||
Épület | |||
| Altípus | Ikerház | Építési év | 2025 év |
Műszaki adatok | |||
| Ingatlan belső állapota | Új építésű | Fűtés | Cirkó |
| Gáz | Van | Villany | Van |
| Csatorna | Van | ||
Általános adatok | |||
| Tájolás | kelet | ||
Helyiségek | |||
| Szobaszám | 4 | ||
Leírás | |||
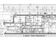
Debrecen dinamikusan fejlődő városrészében, a Jégcsarnok mögötti területen eldó, egy épülő ikerház lakása. Az ingatlan FÖLDSZINTES, konyha - étkező - nappali + 3 szobás, külön fürdőszoba + háztartási helyiség kialakítású, illetve a lakással kapcsolatos egy 22,66 m2 - es garázs. Az ingatlan beépített területe : 108 m2 + egy : 15 m2 - es terasz tartozik hozzá. Az ikerház 2 lakása nem egymáson átjárós, mindkét része utcai bejáratos, saját utcafronttal rendelkezik. A szumma telek 890 m2 , tehát lakásonkénti terület : 455 m2 . Műszaki jellemzői : - 30 - as POROTHERM NF tégla falazat - 10 cm grafit szigetelés - 3 rtg műanyag ablakok, belül fehér, kivül szines tokkal - gázcirkó fűtés, padló hőleadóval - beépített hűtő - fűtő klíma - rejtett redőnytok kialakítás - napelem csövezés, előkészítés ( a jövőbeni kiépítés során nem kell a házat szétverni ) - utcafronti kerítés kivételével minden kerítés benne van az árban, a két lakás közötti elválasztó is. - " A " energetikai besorolás - gépkocsi felhajtó, illetve körben a járda is térkőbel kialakítva . - 3 % - os hitelre alkalmas - belső kialakítás, csempék, lamináltak, beltéri ajtók, stb... választhatóak, vevő igénye szerint készül. Az út jelenleg föld út, de a szerződés alá van írva az önkormányzattal miszerint, 2026 nyárra, ( mire elkészül az ingatlan ) elkészítik a közvilágítással együtt. Várható átadás : 2026 nyara Ha felkeltettem az érdeklődését, kérem hívjon bizalommal. Közművek: víz,villany,gáz,csatorna | |||


