Eladó Ház, Győrság
Cím | |||
| Magyarország, Győr-Moson-Sopron, 9084 Győrság Lalka utca | |||
Épület | |||
| Altípus | Családi | Építési év | 2025 év |
| Építési mód | Tégla | ||
Műszaki adatok | |||
| Fűtés | Egyéb | Komfort típus | Komfort nélküli |
| Víz | Telken | Gáz | Nincs |
| Villany | Telken | Csatorna | Van |
Általános adatok | |||
| Parkolás | Teremparkoló | Tájolás | délkelet |
Helyiségek | |||
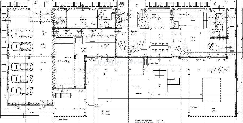
| Szobaszám | 12 | ||
Leírás | |||
Győrság lenyűgöző panorámás birtoka várja új tulajdonosát! Ez az exkluzív ingatlan 8400 négyzetméteren terül el, és páratlan lehetőségeket kínál mind privát, mind üzleti célú felhasználásra. Az 1115 négyzetméteres épület modern infrastruktúrával és félkész állapotban várja, hogy álmai otthonává vagy sikeres vállalkozás alapjává váljon. A telek mérete és elhelyezkedése ideális befektetőknek, akik társasházak, apartmanok vagy egyéb szálló kialakítását tervezik. Az épület már rendelkezik korszerű tetőszigeteléssel és antracit színű, acél nyílászárókkal, amelyek nemcsak esztétikusak, de kiváló szigetelést is biztosítanak. A belső munkák végső simításai már az új tulajdonos ízlésére szabhatóak. A vízellátás Pannonhalmáról érkezik, a villamos hálózat korszerűsítve lett, így az ingatlan minden feltételt biztosít a komfortos és zavartalan élethez. Ez a helyszín nemcsak otthon, de életstílus is: csendes környezet, lélegzetelállító táj, és határtalan lehetőségek egy olyan birtokon, amely egyszerre nyújt intimitást és végtelen kreatív szabadságot. További információért és megtekintésért forduljon hozzánk bizalommal. Referenciaszám: M301714 | |||


