Eladó ház, Gárdony
Cím | |||
| Magyarország, Fejér, 2483 Gárdony Móricz Zsigmond utca | |||
Épület | |||
| Altípus | Ikerház | Építési év | 2025 év |
| Építési mód | Gázbeton, YTONG | ||
Műszaki adatok | |||
| Fűtés | Hőszivattyú | Komfort típus | Luxus |
| Víz | Van | Gáz | Nincs |
| Villany | Van | Csatorna | Van |
Általános adatok | |||
| Parkolás | Telken parkoló | Tájolás | északnyugat |
Helyiségek | |||
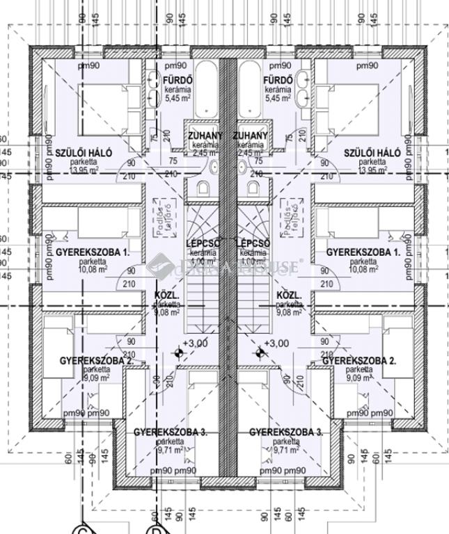
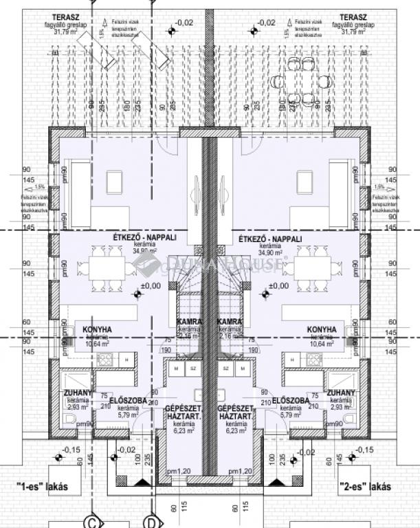
| Szobaszám | 5 | ||
Leírás | |||
Eladó Gárdony frekventált, mégis nyugodt részén egy épülőfélben lévő, minden igényt kielégítő ikerházfél, amely nem csupán egy ingatlan, hanem egy életre szóló befektetés a minőségbe. Tágas terek nagycsaládosoknak is. Ritka kincs a piacon: a földszinti tágas amerikai konyhás nappali mellett további 4 teljes értékű hálószoba és 3 fürdőszoba biztosítja, hogy a reggeli készülődés torlódásmentes legyen, és mindenkinek jusson privát szféra. A teljesség igénye nélkül a lakások műszaki tartalmáról: -Viablokk falazat, 10 cm Dryvit szigeteléssel -Hofstadter 3 rétegű nyílászárók, motoros redőnyökkel -Egyedi kő burkolat a homlokzaton, párkányokon, -Monolit vasbetonfödém -Hőszivattyús padló hűtés-fűtés -A szobákban és a nappaliban hűtő-fűtő és páramentesítő klíma -Térkövezett járda, terasz és kocsibeálló További műszaki tartalmakkal is szívesen állunk rendelkezésre! -Zöldenergia és A++ besorolás Felejtse el a magas rezsit! A ház hőszivattyús fűtésrendszerrel és kiváló szigeteléssel épül, így energetikai besorolása A++. Amit ma megspórol a vételáron egy gyengébb háznál, azt itt a havi számlákon nyerheti vissza hosszú távon. Miért különleges ez az ajánlat? Az ingatlan kivitelezője évtizedes tapasztalattal rendelkezik a prémium kőburkolatok világában. Mit jelent ez Önnek? Azt, hogy itt nem standard burkolatok közül válogathat: leendő tulajdonosként kiemelt lehetőséget kap prémium márvány, gránit és felső kategóriás burkolatok kiválasztására, hogy otthona valóban az Ön ízlését és a luxust tükrözze. Lokáció Gárdony a Velencei-tó fővárosa. A ház elhelyezkedése kiváló: közel a parthoz és a központi infrastruktúrához, mégis csendes környezetben. Befektetés a jövőbe. Bár az ingatlan paramétereiből adódóan állami támogatások (CSOK, stb.) nem vehetők igénybe, ez a ház azoknak szól, akik nem kompromisszumokat keresnek, hanem értéket. Ideális készpénzes vásárlóknak vagy piaci hitellel rendelkezőknek, akik tudják: a minőségi anyaghasználat és a megbízható kivitelező a legjobb garancia. Várható átadás: 2026 Irányár: 168.000.000 Ft 30%-os előleggel leköthető Hívjon bizalommal, és tekintse meg a helyszínt, valamint a választható prémium burkolatok mintáit! | |||


