Eladó Ház, Gádoros
Cím | |||
| Magyarország, Békés, 5932 Gádoros | |||
Épület | |||
| Altípus | Családi | Építési év | 1950 év |
| Építési mód | Vegyes | ||
Műszaki adatok | |||
| Fűtés | Konvektor | Komfort típus | Komfortos |
Általános adatok | |||
| Parkolás | Teremparkoló | ||
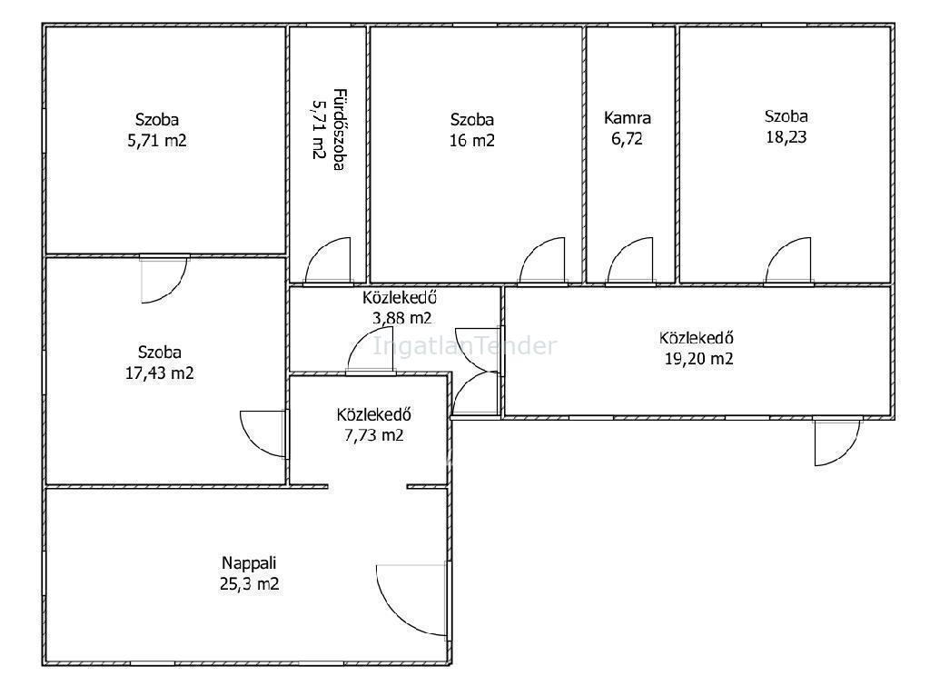
Helyiségek | |||
| Szobaszám | 4 | ||
Leírás | |||
Eladásra kínálom Békés vármegyében Gádoroson, ezt a 1457 m2 es telken lévő 130 m2 -es házat. Az ingatlan korszerűsítésre szorul, így saját igényei szerint alakíthatja ki leendő otthonát! Fűtése gázkonvektoros, falazata vegyes. A házban található 4 szoba és egy nappali, konyha és fürdőszoba. Közelben található bolt, étterem és buszmegálló is. Ideális nagy családosoknak, a vidéki nyugalom kedvelőinek! Legyen Ön is megbízónk, és adja el rajtunk keresztül ingatlanát! Kedvező hitel ajánlatokkal (BABAVÁRÓ hitel, piaci hitel, és szabadfelhasználású hitel) várjuk jelentkezését. Számos konstrukció közül választhatnak. Irodáink Szentes, Petőfi utca 12. (a buszmegálló felől) és Csongrád, Fő utca 54. szám alatt várja a személyes érdeklődőket. ***VÁLASSZUK KI EGYÜTT AZ ÖNNEK LEGMEGFELELŐBB AJÁNLATOT BANKI SORBAN ÁLLÁS NÉLKÜL! *** Érdeklődni: Szlovák Ibolya Referencia szám: M298309-ITE | |||


