Eladó Ház, Ercsi
Cím | |||
| Magyarország, Fejér, 2451 Ercsi | |||
Épület | |||
| Altípus | Családi | Építési év | 2000 év |
| Építési mód | Tégla | ||
Műszaki adatok | |||
| Fűtés | Cirkó | Komfort típus | Összkomfort |
| Víz | Telken | Gáz | Telken |
| Villany | Telken | Csatorna | Telken |
Általános adatok | |||
| Parkolás | Teremparkoló | ||
Helyiségek | |||
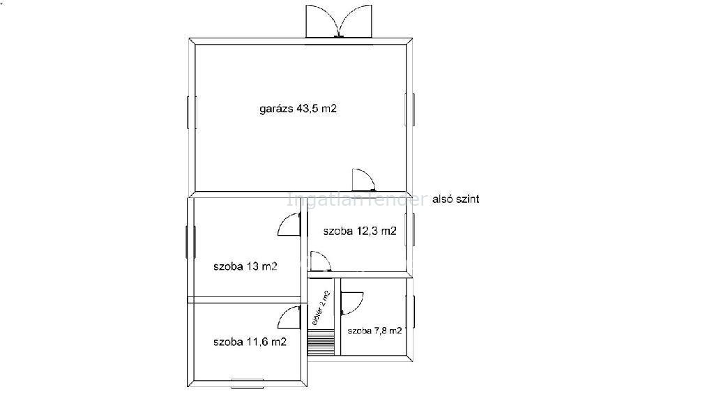
| Szobaszám | 6 | ||
Leírás | |||
Kétgenerációs otthonná alakítható családi ház eladó nagy telekkel, csendes zsákutcában Ercsi egyik nyugodt, forgalommentes zsákutcájában, kínáljuk eladásra ezt a kiváló adottságokkal rendelkező, tégla építésű, masszív szerkezetű családi házat. A ház 2000-ben épült, cseréptetős, teljesen körbejárható, jó állapotú és kiváló elrendezésű. A lépcsőház megnyitásával az ingatlan kétgenerációs családi házzá alakítható, így akár több generáció együttélésére vagy nagyobb család számára is ideális választás. Főbb jellemzők: Az épület: Építés éve: 2000. Szerkezet: tégla. Tető: cserép, kiváló állapotban. Kémény állapota: rendben. Nyílászárók: jó állapotban. Beázás, penész: nincs. Fűtés: összes közmű bevezetve (gáz, víz, villany, csatorna). Napelem: nincs, de a tetőszerkezet alkalmas későbbi telepítéshez. Fúrt kút: nincs. Az ingatlan körbejárható. A ház alatt nagy pince, 4 különálló helyiséggel, tökéletes tárolásra, műhelynek, hobbihelyiségnek. Telek: Méret: 1700 m2. Jogilag kettéválasztható, a jobb oldala a teleknek rész külön építési telekké alakítható, remek befektetési lehetőség! Rendezett kert, gyümölcsfákkal. Több melléképület a telken, tárolásra, kerti és egyéb eszközök számára. Garázs + nyílt kocsibeálló a parkolásra. Az ingatlan csendes zsákutcában található, amelynek végén közvetlenül erdő nyílik, ideális: sétához, kutyasétáltatáshoz, természetben való kikapcsolódáshoz. A környék csendes, családias, nincs: nagyfeszültségű vezeték, gyár, szemétégető, forgalmas út, vonatközeli zaj, szennyvíztelep a környéken. A környező utcák rendezettek, az ingatlan előtt aszfaltos út, rendezett előkert. Infrastruktúra: Közlekedés: Buszmegálló: 5, 10 perc séta. Budapest (M6 autópálya): 5 perc autóval. Martonvásár: 10 perc. Dunaújváros: 15 perc. Ideális ingázóknak is! Oktatás Óvoda, általános iskola: 3, 5 perc autóval. Középiskola Martonvásáron és Érden. Vásárlási lehetőségek Aldi, Penny, Coop, kisebb boltok: 5 perc Gyógyszertár, orvosi rendelő, posta: közelben. Tulajdoni helyzet: 4 tulajdonos (családon belüli tulajdonrészek, mindenki egyet ért az eladásban) Tehermentes ingatlan. Építési engedélyek, dokumentumok rendben. Kinek ajánlom? Nagycsaládoknak. Kétgenerációs megoldást keresőknek. Befektetőknek (a telek felezhető!) Csendes, természetközeli, de mégis jól megközelíthető otthont keresőknek. | |||


