Eladó Ház, Csorna
Cím | |||
| Magyarország, Győr-Moson-Sopron, 9300 Csorna Jázmin út | |||
Épület | |||
| Altípus | Családi | Építési év | 1985 év |
| Építési mód | Tégla | ||
Műszaki adatok | |||
| Fűtés | Cirkó | Komfort típus | Dupla komfort |
| Víz | Telken | Gáz | Telken |
| Villany | Telken | Csatorna | Telken |
Általános adatok | |||
| Parkolás | Teremparkoló | ||
Helyiségek | |||
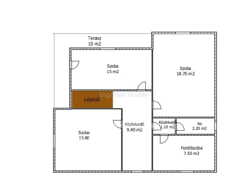
| Szobaszám | 4 | ||
Leírás | |||
Az ingatlan megfelel az Otthon Start Hitelprogram feltételeinek! Csorna belvárosában keresi új tulajdonosát egy belső kétszintes, jó elosztású, duplakomfortos családi ház. Az ingatlan 140 m2-es, 3 szoba+ nappalis, igény szerint felújítandó állapotú. Az otthon melegét vegyestüzelésű kazán ill. gázkazán biztosítja, radiátoros hőleadással. Az autódat egy fűtött garázsban biztonságban tudhatod. Amennyiben hirdetésem felkeltette az érdeklődését, keressen bizalommal! Referenciaszám: M314052 | |||


