Eladó Ház, Budapest 22. ker.

Pénzügyek
(tájékoztató példa, nem minősül ajánlatnak)

Vételár
136 900 000 Ft

25% önerő
34 225 000 Ft

Lakáskölcsön (piaci)
102 675 000 Ft

Törlesztőrészlet 20 éves futamidővel 1 004 634 Ft

Az itt látható számok, jelen piaci körülmények között általánosan elérhető lehetőségek közül kerültek kiemelésre, így nem ajánlattétel, minden esetben pontos minősítés szükséges.
Cím
Magyarország, Budapest, 1225 XXII. kerület
Épület
AltípusCsaládiÉpítési év1970 év
Építési módTégla
Műszaki adatok
FűtésCirkóKomfort típusÖsszkomfort
VízTelkenGázTelken
VillanyTelken
Általános adatok
ParkolásTelken parkoló
Helyiségek
Szobaszám9Félszobák száma2
Leírás

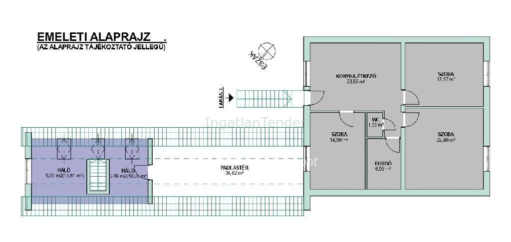
A XXII. kerület legkedveltebb részén, DUNATELEPEN családiház eladó. Az utca végén Duna part, Kis-Háros sziget, természetvédelmi terület, lovarda, kajak-kenu egyesület és SUP kölcsönzési lehetőség! Eladásra kínálok egy nettó 242m2-es két szintes családi házat, melyben jelenleg három különálló lakás van kialakítva. A 724m2-es telken a házon felül fedett sütögető hely, tárolók, és mászóka is található. Az épületen belül a három lakás a mellékelt alaprajz szerint helyezkedik el. Az 1. lakás 122m2, a 2. lakás, ami két szintes nettó 35m2-es, a 3. lakás pedig 86m2-es. A fűtést automata váltókapcsolóval ellátott gáz cirko-, vagy vegyestüzelésű kazán biztosítja. Az épület szigetelt, 2005-ben teljeskörűen felújították, azóta is folyamatosan karbantartják. A parkolás a telken belül, és az utcán is lehetséges. Az utca zsákutca, átmenő forgalomtól mentes. Lke-2/D/1-es övezeti besorolás alapján a telek 20%-os beépíthetőségi, 50% zöldterületi mutató, és 6 m-es építménymagassági maximummal rendelkezik.

Dunatelep lakó pihenő övezet, a lakók összetartóak, utcabálokat szerveznek, saját facebook csoportban segítik egymást. A Covid óta ez a legkedveltebb része a kerületnek. Az ingatlan közvetlen közelében helyezkedik el a Dunapart ABC, mely élelmiszer kiskereskedés. 800m-re pedig két élelmiszer áruházlánci egység is elérhető (ALDI, LIDL). Bevásárló központ két kilométerre található, ahol a közműszolgáltatók, telefontársaságok kirendeltségein kívül posta, gyógyszertár, fodrász, fitnesz-terem, benzinkút is megtalálható (CAMPONA Bevásárló Központ) Háziorvosi rendelő, bölcsőde, óvoda, iskola, 1 km távolságra. A közelben éjszakai és nappali BKV járatok, agglomeráció felé közlekedő távolsági buszok megállói, és vasútállomás is található, a part mentén kerékpárút vezet, melyen szintén elérhetjük a belvárost. Az ingatlan CSOK+-ra alkalmas, és a kiadható lakások a törlesztő részleteket is bőven fedezik. Ne szalassza el ezt a lehetőséget. Igény szerint hitelügyintézést, ügyvédi közreműködést biztosítunk, és segítséget nyújtunk az adásvétel folyamatának intézéséhez. Otthon Start Hitelprogram

Amennyiben érdekli az ingatlan, vagy további kérdései vannak, hívjon telefonon munkanapokon 8h-16h-ig, vagy hagyjon üzenetet itt a hirdetésnél névvel, telefonszámmal, és visszahívom.

Eladó — Ház
  • Alapterület:242 m2
  • Telekterület:728 m2
  • Szobaszám:9 + 2 fél
  • Hirdetés #:674965
  • Eladási ár
  • 136 900 000 Ft
    565 702 Ft/m2
Hirdető adatai

Fotózza le az alábbi kódot a telefonjával és más eszközön is láthatóvá válik a hirdetés.

Ingatlant keres?

Regisztráljon keresőként, akár kiemelésekkel

Használd fizetős szolgáltatásainkat!

Hasonló Hirdetések
^ Fel