Eladó Ház, Bezenye
Cím | |||
| Magyarország, Győr-Moson-Sopron, 9223 Bezenye | |||
Épület | |||
| Altípus | Családi | Építési év | 2022 év |
| Építési mód | Tégla | ||
Műszaki adatok | |||
| Fűtés | Cirkó | Komfort típus | Összkomfort |
| Víz | Telken | Gáz | Telken |
| Villany | Telken | ||
Általános adatok | |||
| Parkolás | Telken parkoló | ||
Helyiségek | |||
| Szobaszám | 4 | Félszobák száma | 1 |
Leírás | |||
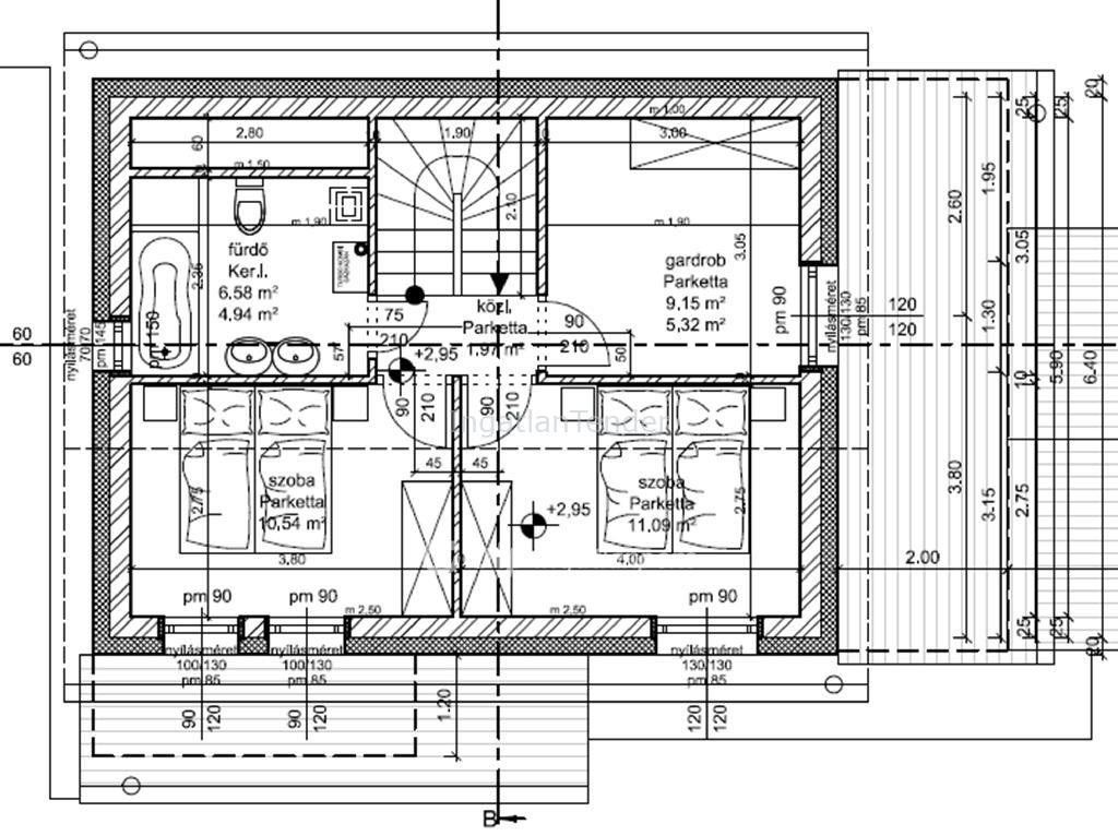
Győr-Moson-Sopron megyében, Osztrák határ, és Mosonmagyaróvár szomszédságában, Bezenye kialakult településrészén újépítésű ikerház leköthető! A két épületet csak egy közös garázstető köti össze. Mindkét épület külön telken, egymástól elkülönülve helyezkedik el. Az ikerház jelen B épülete tégla szerkezetű 90 m2 nettó hasznos alapterületű, belső két szintes. A telek mérete: 313 m2. Több éves tapasztalattal és kiváló referenciákkal rendelkező megbízható cég kivitelezésében, átgondolt műszaki tartalommal és jó minőségű beépített anyagokkal. A megjelölt ár emeltszintű szerkezetkész állapotra vonatkozik, de a beruházó vállalja a kulcsrakész befejezést is, ebben az esetben az ár 210.000.- Euró. Várható átadás, szerződéskötéstől számítva egy év. Amennyiben a hirdetés felkeltette érdeklődését és bővebb információt szeretne keressen bizalommal elérhetőségeimen! Amennyiben felkeltettük érdeklődését, kérem hívjon bizalommal! Szabó Gábor Referencia szám: M225454-ITE | |||


