Eladó Ház, Bábonymegyer
Cím | |||
| Magyarország, Somogy, 8658 Bábonymegyer | |||
Épület | |||
| Altípus | Családi | Építési év | 1970 év |
| Építési mód | Vegyes | ||
Műszaki adatok | |||
| Fűtés | Egyéb | Komfort típus | Összkomfort |
| Víz | Telken | Gáz | Van |
| Villany | Telken | ||
Általános adatok | |||
| Parkolás | Telken parkoló | ||
Helyiségek | |||
| Szobaszám | 3 | ||
Leírás | |||
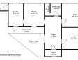
Bábonymegyer, Siófoktól 22 km-re, 101 m2-es kertes családi ház. Csendes, nyugodt helyen, hatalmas 4003 m2 -es telekkel. A telek méretéből adódóan mindenki megtalálhatja a számítását, hiszen állattartásra, növénytermesztésre is alkalmas, de akár egy játszótér a gyerekeknek, vagy akár garázs is kialakítható. Rengeteg melléképület ipari árammal, és egy pince is rendelkezésre áll. A ház egy eredeti tégla építésű kádárkocka, melyet később vegyes falazattal bővítettek. Az ingatlan elosztása igazán nagyszerű. A bejárat egy kisebb fedett tornác alatt a konyhába nyílik, melyből balra az étkező, jobbra egy kamra található. Az étkezőn keresztül a tágas nappaliba jutunk. A nappaliból nyílik két nagy hálószoba, az eredeti előszoba mely jelenleg tárolóként funkcionál, de igény esetén egy kisebb, ámde nagyon fényes dolgozó szoba, játszó sarok is kialakítható. A nappaliból nyílik továbbá egy zuhanyzós fürdőszoba, mely elég nagy ahhoz, hogy akár kád is elférjen benne. A fürdőből külön elszeparálva nyílik a wc. Fűtés jelenleg vegyestüzeléses kazánnal, radiátor hőleadókkal megoldott. Bábonymegyer egy rendkívül összetartó kisközség, kedves szomszédokkal, remek kirándulós lehetőségekkel. Kiváló befektetés a békés, vidéki életbe! Az ingatlan rendezett tulajdonviszonyú, tehermentes. Irodánk az ingatlanközvetítés mellett pénzügyi finanszírozás és biztosítási igényekben is rendelkezésre áll. További információkért kérem keressen telefonon a hét bármely napján! M295746 Otthon Start Hitelprogram | |||


