Eladó családi ház Jánosházán!
Cím | |||
| Magyarország, Vas, 9545 Jánosháza Sümegi út | |||
Épület | |||
| Altípus | Családi | Építési év | 1959 év |
| Építési mód | Tégla | ||
Műszaki adatok | |||
| Fűtés | Egyéb | Víz | Van |
| Gáz | Van | Villany | Van |
| Csatorna | Nincs | ||
Általános adatok | |||
| Parkolás | Garázs | Tájolás | kelet |
Helyiségek | |||
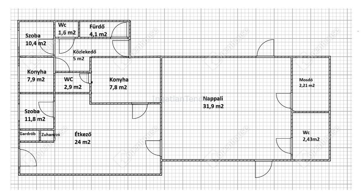
| Szobaszám | 2 | ||
Leírás | |||
Az Openhouse Szombathely Ingatlaniroda kínálatában eladó a #179178 hivatkozási számú jánosházi családi ház. Eladó Jánosházán egy hangulatos, tágas lakóház garázzsal! 116 m2 es lakóingatlan kínálunk értékesítésre a település központjához nagyon közeli elhelyezkedéssel! Az épületen folyamatosan történtek felújítások, de több szempontból érdekes lehet vevői oldalról, mivel akár családok számára is kiváló és üzleti célra is alkalmas lehet az elosztása miatt! Egy igazi gyöngyszem Jánosházán! Az épület első részét ,már most akár apartmanoztatásra is használható! Az épületen 30 cm tetőfödém szigetelés történt,pár éve új tetőfedés cseréppel is megtörtént, Homlokzati hőszigetelés hungarocell. A lakóház fűtéséről kandallók gondoskodnak! Szobák száma 2 db, de további kialakítása lehetséges. Helyiségek: 31 m2 tágas nappali, 2 fürdő 3 Wc Gardrób Étkező és konyha helyiség Az épületben ipari áram is van. Az épülethez továbbá tartoznak jó állapotú garázs, fatároló, illetve szerszámtároló helyiség! Tágas nappaliból nyíló fedett terasz térkövezett burkolattal 600 m2 udvar zöld környezetet biztosít leendő lakói számára! Ha felkeltette érdeklődését ez az eladó jánosházi családi ház, vagy bármely más családi ház és bővebb információt szeretne, keressen bizalommal.Hivatkozási szám: #179178 Az Openhouse Szombathely Ingatlaniroda tagjaként várom Önt az országos hálózatunk teljes kínálatával. A családi ház vásárláshoz hitelt igényelne? Ingyenes hitelközvetítéssel segít Önnek bankfüggetlen hitelszakértőnk. További szolgáltatásainkkal (pl. értékbecslés, energetikai tanúsítvány, jogi háttér) is segítjük Önt a vásárlásban. Az otthon érték. Az ingatlan üzlet. | |||


