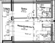
Új építésű lakások Győrben – modern környezetben, mindenhez közel ll emelet 8 lakàs 43 890 000 Ft emeltszintű fűtéskész 40,16 m2 10,16 m2 terasz
Address | |||
| Hungary, Győr-Moson-Sopron, 9029 Győr | |||
Building | |||
| Building-type | Tégla | Constraction type | Tégla |
Technical data | |||
| State of the object | Új építésű | ||
Description | |||
Új építésű lakások Győrben – modern környezetben, mindenhez közel ll emelet 8 lakàs 43 890 000 Ft emeltszintű fűtéskész 40,16 m2 10,16 m2 terasz II emelet 8 Győr egyik legkedveltebb, Szitàsdomb fejlődő városrészében kínálunk eladásra új építésű társasházi lakásokat, mindössze néhány perces autóútra a belvárostól és az Árkád bevásárlóközponttól. A környék kiváló elhelyezkedésének köszönhetően egyszerre nyugodt, családbarát lakókörnyezet és rendkívül jó közlekedési kapcsolatokkal rendelkező városrész. A lakópark területén a mindennapi élethez szükséges szolgáltatások is kialakításra kerülnek: buszmegálló, óvoda, bölcsőde, orvosi rendelő és üzletek. Így minden fontos elérhető közelségben lesz, ami ideális választássá teszi a helyszínt családok és befektetők számára egyaránt. A vállalkozó kulcsrakész befejezést is vállal. Az épület jellemzői: 3421 m²-es telken elhelyezkedő társasház összesen 35 modern kialakítású lakással, zárt udvari gépkocsi-beállók (1.500.000 Ft/db – jogszabály által előírt). Lakás paraméterei: alapterület: 40,16 m², erkély mérete: 10,16 m², amely kiváló lehetőséget biztosít a pihenésre. További lehetőségek: tároló vásárlása 1.400.000 Ft / 1.600.000 Ft áron, kulcsrakész átadás igény szerint. Finanszírozási lehetőségek: CSOK, kamattámogatott hitel, Babaváró kölcsön. Ez az ingatlan remek választás mindazoknak, akik modern, jól megközelíthető otthont keresnek Győrben, vagy hosszú távon értékálló befektetésben gondolkodnak. | |||


