Sell, house, Vas, Sé
Address | |||
| Hungary, Vas, 9789 Sé | |||
Building | |||
| Year of construction | 2002 év | ||
Technical data | |||
| State of the object | Kiváló | Heating | Cirkó |
| Gas | Van | Electricity | Van |
| Sewerage | Van | ||
General | |||
| Orientation | délkelet | ||
Rooms | |||
| Number of bedrooms | 7 | ||
Description | |||
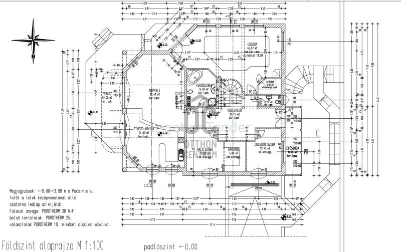
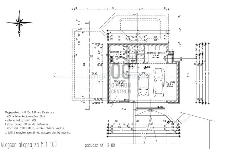
Megvételre kínálok egy csodálatos, panorámás, 2002-ban épült családi házat , csendes utcában, Szombathely mellett SÉ-ben . TELEK: -1100m2 - panorámás - saroktelek - parkosított - örökzöldek körben - rendezett-gondozott - öntözőberendezés kiépítve - körbe kerített - díszburkolat a garázs és a ház között CSALÁDIHÁZ: -2002-ben épült egyedi elképzelés alapján, belső építész segítségével - igényes, élhető, tágas terek jellemzik az egész házat - DK-i fekvésű - családi ház három szinten 380nm - amerikai konyhás nappali + 5 szobából áll ( ebből az egyik jelenleg irodának van használva ) - 2 fürdőszoba - külön vendég WC - gardróbszoba - háztartási helyiség - tágas előszoba - beépített padlás - 2db autóbeálló a garázsban, a garázs előtt még egy autónak beállási lehetőség biztosított - elektromos kapu - parkosított udvar - részben fedett terasz (45m2, térkövezett) - jó minőségű konyhabútor (beépített gépekkel) - padlófűtés + radiátoros fűtés - nappaliban kandalló - a házban több fűtési lehetőség: elektromos kazánnal és gáz cirkóval megoldott - hűtő- fűtő klíma a nappaliban - emeleten 2 db hűtő klíma lett beszerelve - megújuló energia: napelem 10KWp - tetőtéri ablakok Velux márkájúak - nyílászárók műanyagok, teraszajtó tolóajtós - nappaliban a teraszon elektromos redőny, - szobákban reluxa - tégla építésű - 10 cm homlokzat szigetelés - terasz alatt tároló lett kialakítva a kerti szerszámoknak, a kertben lévő nyári bútoroknak - USZODA szaunával - medence mélysége 140-150cm, víz forgatóval, ellenáramoltatóval, víz melegítéssel - medencén takarófólia - medence tér világos, körbe ablakokkal, szalagfüggönnyel. - Az ablakok kialakítása szellőztetővel megoldott - kertkapcsolatos SÉ településen óvoda Iskola Szombathelyen és Torony településen KERÉKPÁR ÚT Szombathelyig kiépítve, természetközeli, zöld környezetben KB 10 PERC TÁVOLSÁGBAN Sport létesítmények, fedett teniszpálya, uszoda, csónakázó tó 8-10 perces távolságban. Ausztriai kishatár ( Bucsu) kb. 8 km-re Közművek: víz,villany,gáz,csatorna | |||


