Sell, house, Tolna, Bátaszék

Pénzügyek
(tájékoztató példa, nem minősül ajánlatnak)

Vételár
19 900 000 Ft

25% önerő
4 975 000 Ft

Lakáskölcsön (piaci)
14 925 000 Ft

Törlesztőrészlet 20 éves futamidővel 146 035 Ft

Az itt látható számok, jelen piaci körülmények között általánosan elérhető lehetőségek közül kerültek kiemelésre, így nem ajánlattétel, minden esetben pontos minősítés szükséges.
Address
Hungary, Tolna, 7140 Bátaszék
Building
Year of construction1960 év
Technical data
State of the objectÁtlagosHeatingCirkó
GasVanElectricityVan
SewerageVan
General
Orientationdél
Rooms
Number of bedrooms3
Description

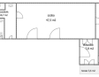
A családi ház jelenleg üzletházként van nyilvántartva, de a tulajdonos gondolkodik az átminősítésen lakóházzá. Ebben a formában lakáshitel nem vehető fel rá. A ház a központhoz közel, csendes helyen található. A falazata vegyes. A tető héjazata cserép. A nagy belmagasság miatt tágasak, világosak a terek. Nagy betonozott udvar és zöldterület is tartozik hozzá. A nyílászárók az eredeti fa szerkezetek. Fűtése gáz-központi fűtés, a meleg vizet villanybojler állítja elő. Az ingatlan közepén egy több, mint 40 m2-es helyiség található, amely igény szerint használható üzlettérnek, vagy nappali-étkező-konyhának. A házban az eredeti funkciónak megfelelően nagy vizesblokk került kialakításra. Az udvarban 2 autó tárolására is alkalmas betonozott garázs található.

Akár üzleti, akár lakáscélra megfelel az Ön igényeinek, hívjon, és megmutatom!

Kedves Ügyfelünk, az ingatlanról videót is készítettünk. Ha ezt a hirdetést az Otthon Centrum weboldalán nézi, akkor a videóra a képek után tud kattintani. Ha egy másik weboldalon találta ezt a hirdetést, kérem nyissa meg az Otthon Centrum weboldalát, kattintson a „Regisztrációs szám keresése” menüpontra, és írja be ezt a regisztrációs számot a keresőbe: H501212 Itt meg tudja tekinteni az ingatlanról készült videót. Vagy írjon nekem, és szívesen elküldöm a videót.

családi ház 3 szoba nagy terek vegyes falazat garázs nagy telek gázfűtés OC H501212

Közművek: víz,villany,gáz,csatorna

Sell — House
  • Square:109 m2
  • Plot area (m2):1033 ares
  • Number of bedrooms:3
  • Listing ID:576796
  • Sell price
  • 50 962
    €/m2 468

Take a photo of the code below with your phone and view the ad on other devices also.

Looking for real estates?

Regisztráljon keresőként, akár kiemelésekkel

apply paid services

Similar listings
^ Go up