Sell, house, Pest, Maglód
Address | |||
| Hungary, Pest, 2234 Maglód | |||
Building | |||
| Year of construction | 2025 év | ||
Technical data | |||
| State of the object | Új építésű | Komfort típus | Összkomfort |
| Electricity | Van | Sewerage | Van |
General | |||
| View | Lake view | Parking | Kültéri parkoló |
| Orientation | délnyugat | ||
Rooms | |||
| Number of bedrooms | 5 | ||
Description | |||
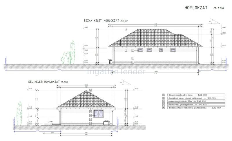
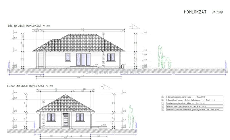
Maglódon a Dózsa György úton, 1074 m2-es telken, újonnan épülő nettó 111,29 m2 hasznos lakótérrel rendelkező, 4 szoba + nappalis önálló családi ház eladó. Csok plusz, Otthon Start elérhető! A terv még módosítható, igény szerint kialakítható három szobával és nagyobb nappalival is a családi ház! Az ingatlan 30-as Nútféderes tégla falazóelemből épül, fa födémmel. A tető héjazata antracit betoncserép lesz, a homlokzatok 15cm EPS, a padló 10cm Austrotherm AT-N100-as, a vízszintes födém 25cm Ásványgyapot szigeteléssel lesz ellátva. Hat légkamrás 3 rétegű evegekkel szerelt nyílászárók kerülnek beépítésre. A fűtést 10kw-os monoblockos hőszivattyús rendszer fogja ellátni, padlófűtéssel. A műszaki tartalom választható az alábbi költségkereten belül: -hidegburkolat:5000.- Ft./m2-ig. -melegburkolat:5000.- Ft./m2-ig -csaptelepek:15.000.- Ft./db -kád vagy zuhany: 50.000.- Ft. -beltéri ajtók:50.000.- Ft./db Elektromos kiépítés: -Konnektorok szobákban: 3 db -Konnektorok nappaliban 4db + internet és kábeltv kiállás -Konnektorok konyhában: 6db -Világítás helyiségenként 1-1 db -Kábeltévé: Előkészítés Magasabb árú tatalom is választható a különbség finanszírozásával. Riasztó előkészítés és kapu mozgató elektronika előkészítés is készül. Kérésre szívesen küldünk komplett tervdokumentációt, műszaki leírást. A kivitelező korábban Sülysápon számos ingatlant épített,a már értékesített és birtokbaadott ingatlanokat komoly érdeklődés esetén szívesen megmutatjuk referenciaként. Várható átadás 2026 második negyedév! INGYENES hitel tanácsadás, CSOK Plusz ügyintézés! BANKFÜGGETLEN hitelcentrumunk az összes elérhető bank és hitelintézet ajánlatát versenyezteti az Ön kedvéért, ráadásul DÍJMENTESEN. - Egyedi, bankfiókban nem elérhető kamat- és díjkedvezmények - Hitelképesség vizsgálat - Idő, energia és pénz megtakarítás - Teljes hivatali ügyintézés Amennyiben hirdetésem felkeltette az érdeklődését vagy egyéb információra van szüksége hívjon bizalommal! Extrák: amerikai konyha Közművek: víz,villany,csatorna | |||


