Sell, house, Pest, Kiskunlacháza
Address | |||
| Hungary, Pest, 2340 Kiskunlacháza | |||
Building | |||
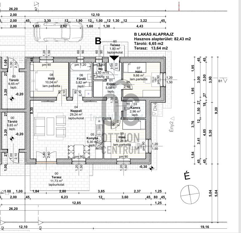
| Altípus | Ikerház | Year of construction | 2025 év |
Technical data | |||
| State of the object | Új építésű | Electricity | Van |
| Sewerage | Van | ||
General | |||
| Orientation | észak | ||
Rooms | |||
| Number of bedrooms | 4 | ||
Description | |||
Projekt bemutatása Kiskunlacházán most épülő ikerház eladó! - csak tárolónál kapcsolódik - téglából épül - hőszivattyús fűtés - nappali + 3 szoba - terasz "A" lakás: 89,22 nm "B" lakás: 91,09 nm Hitel, CSOK felvehető! 20%-tól foglalózható További részletekért kérem hívjon! Közművek: víz,villany,csatorna | |||


