Sell, house, Pest, Diósd
Address | |||
| Hungary, Pest, 2049 Diósd | |||
Building | |||
| Year of construction | 1970 év | ||
Technical data | |||
| State of the object | Jó | Heating | Egyéb |
| Electricity | Van | Sewerage | Van |
General | |||
| Orientation | délkelet | ||
Rooms | |||
| Number of bedrooms | 2 | ||
Description | |||
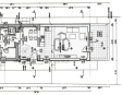
Álmai otthona várja Diósdon legkeresettebb helyén Felsőgazdag dűlő város részén, ahol a természet közelsége és a városi élet előnyei harmonikusan találkoznak. Ez a nettó 70,3 négyzetméteres (Bruttó 85 m2), jelenleg hétvégi ház besorolású ingatlan ideális választás fiatal felnőttek számára, akik szeretnék élvezni a csendes, barátságos környezetet, miközben könnyedén elérhetik a város nyújtotta lehetőségeket. Az ingatlan 1045 m2 telken helyezkedik el, amely bőséges teret biztosít a szabadidős tevékenységekhez, kertészkedéshez, vagy akár egy kis medence kialakításához is. Helyiségei: Földszint: -Nappali - konyha 26,96 m2 -Előszoba 11,6 m2 -Fürdőszoba 4,72 m2 -WC 1,69 m2 -Közlekedő 6,71 m2 -Tároló 5,28m2 -Gardobe 1,69 m2 -Terasz 12,36 m2 Emelet: -Szoba 16,36 m2 -Közlekedő 2,0 m2 Az ingatlan állapota jó, jelenleg is lakott. Elindult a családi házzá való átépítése, aminek minden engedélye magvan. Így Önnek csak a személyes ízlésének megfelelően kell befejeznie, amennyiben lát benne fantáziát 3 db klímaberendezés gondoskodik a fűtésről és a nyári melegben a hűtésről. Diósd Felsőgazdagdűlő városrészének előnye, hogy csendes, mégis közel van a főbb közlekedési csomópontokhoz. A környék biztonságos, családbarát, és számos zöld területet kínál, ahol a szabadban való kikapcsolódásra van lehetőség. Az iskolák, boltok és szolgáltatások mind a közelben találhatóak, így a mindennapi élet könnyedén megoldható. Ez az ingatlan nem csupán egy ház, hanem egy lehetőség a jövőjére, amelyben megvalósíthatja álmait. Legyen szó saját otthonról vagy befektetési céllal történő vásárlásról, ez a kiváló elhelyezkedés és a környék adottságai garantálják, hogy jó döntést hoz. Amennyiben felkeltette érdeklődését ez a remek lehetőség, kérem, ne habozzon kérdéseivel keresni! Bizalommal állok rendelkezésére a hét bármely napján, hogy segítsek Önnek a legjobb döntés meghozatalában. Ez az ingatlan a "Felező csomag" megbízási portfólióhoz tartozik. Részletek az Otthon Centrum weboldalán. Közművek: víz,villany,csatorna | |||


