Sell, house, Pest, Csömör
Address | |||
| Hungary, Pest, 2141 Csömör | |||
Building | |||
| Altípus | Ikerház | Year of construction | 2024 év |
Technical data | |||
| State of the object | Új építésű | Sewerage | Van |
General | |||
| Orientation | délkelet | ||
Rooms | |||
| Number of bedrooms | 4 | ||
Description | |||
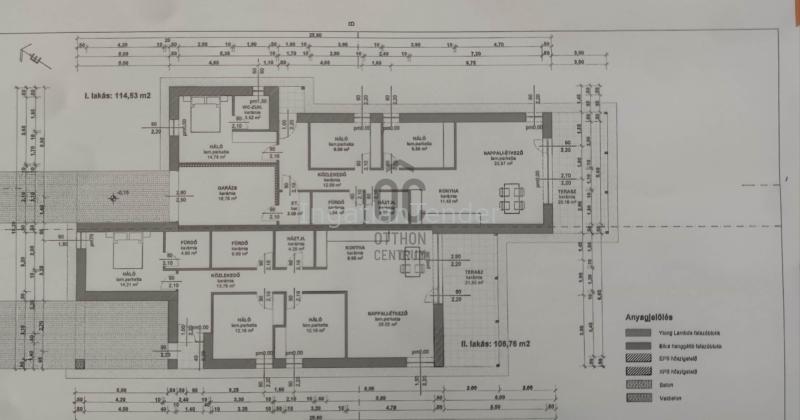
Leírás Újépítésű ikerház fele eladó Csömör központi, de mégis csendes részén! Eladásra kínálunk Csömör frekventált helyén egy most épülő ikerházat. A ház nettó 120nm, bruttó 139nm, a telek 456nm. Egy igazán hangulatos kis utcában, (ami egyben zsákutca is, így nincs átmenő forgalom) található az ingatlan, csak újépítésű épületekkel. Helyiségek: -amerikai konyhás nappali -15 nm-es hálószoba -két 11 nm-es hálószoba -két fürdőszoba, az egyikben kád, a másikban zuhanyzókabin kerül beépítésre. -háztartási helyiség -gardrób szoba Műszaki leírás: -Alapozás: C-16-es vasbeton lemezalap , sávalap -Szigetelés: Vízszintes talajpára elleni szigetelés Gv-35-ös bitumenes lemezzel -Aljzatok alatt 15 cm lépésálló szigetelés -Tetőszerkezeteknél minimum 25+15 cm szigetelés -Tartófalak: 30cm Ytong+10cm hőszigetelés -Áthidalók: Főfalaknál , válaszfalaknál Porotherm kiváltók - Födémek: fa födém +gipszkarton -Bádogos munkák : terv szerinti színezett bádogozás - Válaszfalak: 10- cm vastag YTONG, dryvithálóval megerősítve -Belső vakolatok: Főfalakon, 3x-i gelettelés sarok élvédők elhelyezésével, dryvit hálóval erősítve -fűtés rendszer hőszivattyú ( levegő-víz) padlófűtéssel -Homlokzati nyílászárók: fehér műanyag szerkezetű hőszigetelő , tripla üvegezés Gealan, bejárati ajtó . -Ablakok , terasz ajtók fehér színben (fix, vagy nyíló-bukó) bejárati ajtó hull h1 -Ablakkönyöklők: belül műanyag, kívül műanyag -Lakás bejárati ajtók: 5 ponton záródó hőszigetelt műanyag ajtók -Nappaliban ,Hálószobákban, emeleti közlekedőben, gardróbban laminált padló, szegőléccel alátétfóliával -Konyhában alsó és felső szekrények között kerámia -teraszokon térkő burkolat -kocsibeálló , járda viacolor 10x20x6 szürke - Oldalfalak, mennyezetek fehér diszperziós festékkel festve -250m-en belül buszmegálló, iskola, óvoda, bölcsőde, CBA príma, kifogástalan autómentes infrastruktúra! -Ez az ingatlan különleges lehetőséget kínál azoknak, akik szeretnék élvezni a csendes vidéki életet, miközben mégis könnyen hozzáférnek a városi kényelmi szolgáltatásokhoz. Ideális választás lehet nagyobb családoknak, akik együtt szeretnék élni, Azoknak ajánlom, akik egy harmonikus és gyönyörű környezetben szeretnék élvezni az életüket, és ahol a modern kényelem és a természeti szépségek tökéletes harmóniát alkotnak. -JÖJJÖN, TEKINTSE MEG, ÉS SZERESSEN BELE, ÉS LEGYEN ÖNÉ ÁLMAI OTTHONA. -FELMERÜLŐ KÉRDÉSSEL, MEGTEKINTÉSSEL KAPCSOLATBAN, KÉREM KERESSEN BIZALOMMAL A HÉT BÁRMELYIK NAPJÁN. -Irodánk kedves ügyfeleinek soron kívüli VIP hitelügyintézés 22 banknál. Energetikai tanúsítvány 24-48 órán belül. Azoknak a kedves vevőknek akik Irodánktól vásárolnak, kedvezményes ügyvédi díjat biztosítunk.(az Irodánk partner ügyvédéinél) Közművek: villany,csatorna | |||


