Sell, house, Heves, Gyöngyöshalász
Address | |||
| Hungary, Heves, 3212 Gyöngyöshalász | |||
Building | |||
| Year of construction | 2025 év | ||
Technical data | |||
| State of the object | Új építésű | Gas | Van |
| Electricity | Van | Sewerage | Van |
General | |||
| View | Sea view | Orientation | észak |
Rooms | |||
| Number of bedrooms | 5 | ||
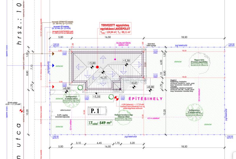
Description | |||
Eladó prémium családi otthon Gyöngyöshalászon! AZ INGATLAN 70%-os készültségben van! ÚJ LAKÓPARKBAN, ZÁRT KÖZÖSSÉGGEL! Gyöngyöshalászon, a fejlődő Toldi utcában eladásra kínálok egy nettó 93 m²-es, modern családi házat, amely 3 szobával és egy tágas nappalival biztosít kényelmes életteret. Az új lakópark sorompóval és portaszolgálattal védett bejárattal épül, így nyugodt, biztonságos környezetet kínál lakóinak. Minőségi építési megoldások, energiatakarékos kialakítás ✔ Falazat: Porotherm P30N+F tégla, betonkoszorúval és fa födémszerkezettel ✔ Szigetelés: ✔ Lábazat: 10 cm lépésálló polisztirol ✔ Homlokzat: 10 cm grafitos hőszigetelés ✔ Födém: 25 cm ásványgyapot ✔ Nyílászárók: 3 rétegű üvegezésű, 6 légkamrás műanyag ablakok ✔ Fűtés: Levegő-víz hőszivattyús rendszer – alacsony fenntartási költségek, fenntartható megoldás Személyre szabható belső tér A belső kialakítás igény szerint választható burkolatokkal és szaniterekkel készül: ✅ Hidegburkolat: 4.000 Ft/m² ✅ Melegburkolat: 4.000 Ft/m² ✅ Beltéri ajtók: 30.000 Ft/db ✅ Fürdőkád: 40.000 Ft ✅ Csaptelepek: 15.000 Ft/db Magasabb árkategóriájú termékek választására is van lehetőség! Tökéletes választás minden korosztály számára ✔ Modern kialakítás és energiatakarékos technológiák ✔ Családosok, fiatalok és idősebbek számára egyaránt ideális otthon ✔ A zárt lakópark exkluzív környezetet biztosít ✔ Kiváló közlekedési lehetőségek ✔ Az építtető korábbi projektjei megtekinthetők referenciaként! ✔ Ne maradjon le erről a különleges lehetőségről! Érdeklődjön most, és találja meg álmai otthonát! Extrák: panoráma Közművek: villany,gáz | |||


