Sell, house, Heves, Ecséd
Address | |||
| Hungary, Heves, 3013 Ecséd | |||
Building | |||
| Year of construction | 2025 év | ||
Technical data | |||
| State of the object | Új építésű | Electricity | Van |
| Sewerage | Van | ||
General | |||
| View | Courtyard view | Orientation | nyugat |
Rooms | |||
| Number of bedrooms | 4 | ||
Description | |||
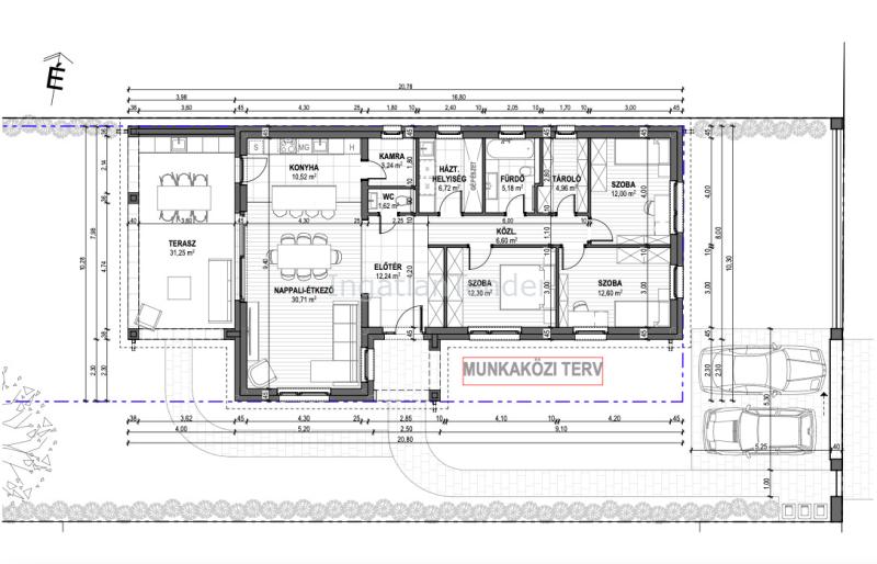
Ecséden, 750 m²-es telken, 119 m²-es új építésű családi ház eladó! Az ingatlan modern elrendezésű: – amerikai konyhás nappali – 3 hálószoba – fürdőszoba – külön WC – háztartási helyiség – terasz A ház energiatakarékos kivitelezésben épül, korszerű hőszivattyús fűtéssel, padlófűtéssel. CSOK Plusz és Otthon Start igénybe vehető! Főbb műszaki jellemzők – 30-as nútféderes tégla falazat – fa födém – antracit betoncserép tetőhéjazat – 15 cm EPS homlokzati szigetelés – 10 cm Austrotherm AT-N100 padlószigetelés – 25 cm ásványgyapot födémszigetelés – 6 légkamrás, 3 rétegű üvegezésű nyílászárók – 10 kW monoblockos hőszivattyú – padlófűtés Választható műszaki tartalom (alapárban) – hidegburkolat: 3.000 Ft/m²-ig – melegburkolat: 3.000 Ft/m²-ig – csaptelepek: 15.000 Ft/db-ig – kád vagy zuhany: 40.000 Ft-ig – beltéri ajtók: 35.000 Ft/db-ig Magasabb árkategóriás anyagok is választhatók a különbözet finanszírozásával. Elektromos kiépítés – szobák: 3 db konnektor – nappali: 4 db konnektor + internet és kábeltévé kiállás – konyha: 6 db konnektor – világítás: helyiségenként 1 db – kábeltévé előkészítés – riasztó előkészítés – kapumozgató elektronika előkészítés Összegzés – Lakótér: 119 m² – Telek: 750 m² – Elosztás: amerikai konyhás nappali + 3 szoba – Terasz – Korszerű hőszivattyús fűtés, padlófűtéssel – CSOK Plusz és Otthon Start igénybe vehető Kérésre teljes tervdokumentáció és részletes műszaki leírás is elérhető. Díjmentes hiteltanácsadás és ügyintézés szintén elérhető nálunk! Közművek: villany | |||


