Sell, house, Győr-Moson-Sopron, Koroncó
Address | |||
| Hungary, Győr-Moson-Sopron, 9113 Koroncó | |||
Building | |||
| Year of construction | 2025 év | ||
Technical data | |||
| State of the object | Új építésű | Heating | Cirkó |
| Gas | Van | Electricity | Van |
| Sewerage | Van | ||
General | |||
| View | Lake view | Orientation | délnyugat |
Rooms | |||
| Number of bedrooms | 4 | ||
Description | |||
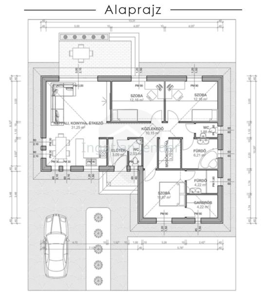
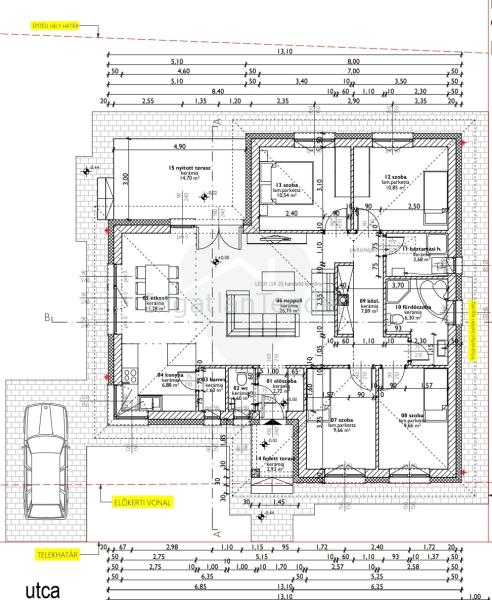
Győr közelében Koroncón, újonnan épülő, igényes kialakítású, tégla építésű családi ház leköthető. A nappali + három szobával(vagy akár több szobával) rendelkező ingatlan alapterülete nettó 100 m2, mely igény szerint módosítható. A praktikusan tervezett házban a szobákon kívül tágas és napfényes amerikai konyhás nappali, gardrób, kamra, szélfogó, közlekedő, fürdőszoba+wc, háztartási helyiség és egy külön mellékhelyiség is kialakításra kerül. Az élhető méretű telek összesen 910 m2-es, mely 30%-ban beépíthető. A feltüntetett vételár az emelt szintű fűtés kész árat és a telek árát tartalmazza, de igény esetén kulcsra kész befejezésre is van lehetőség! Továbbá az ár tartalmazza a komplett tervezői díjat(gépészet, metszetek, statika, energetika, engedélyek), plusz egy inverteres(hűtő-fűtő) klímát! A jelenlegi árajánlatban az otthon melegéről gáz-cirkó kazán gondoskodik, padlófűtéses hőleadással, de a fűtésrendszer is az építtető igényei alapján módosítható! A részletes műszaki leírást és az Építőipari cég weboldalát kérésére e-mailben elküldöm. Más az elképzelése? Válassza ki Ön a saját elképzeléseinek megfelelő alaprajzot! Amennyiben teljesen egyedi tervezést szeretne, az is lehetséges! A képek látványtervek. Jól átgondolt tervezés, megfelelő szakmai tudás és háttér garantálja a MINŐSÉGI OTTHON megvalósítását! További kérdés esetén állok rendelkezésére! Amennyiben megbízható építtetőt szeretne, referenciamunkákkal, minőségi anyagokkal és kivitelezéssel, hívjon bizalommal akár hétvégén is! Teljes körű ügyintézéssel: - Ügyvéd - Biztosítás - Hiteltanácsadás - Generálkivitelezés - Ingatlanértékesítés - Teljeskörű ingatlanfelújítás - CSOK, babaváró, áfa visszaigénylés - állunk rendelkezésére! Extrák: bútorozott Közművek: villany,gáz | |||


