Sell, commercial, Szabolcs-Szatmár-Bereg, Tuzsér
Address | |||
| Hungary, Szabolcs-Szatmár-Bereg, 4623 Tuzsér | |||
Building | |||
| Year of construction | 1980 év | ||
Description | |||
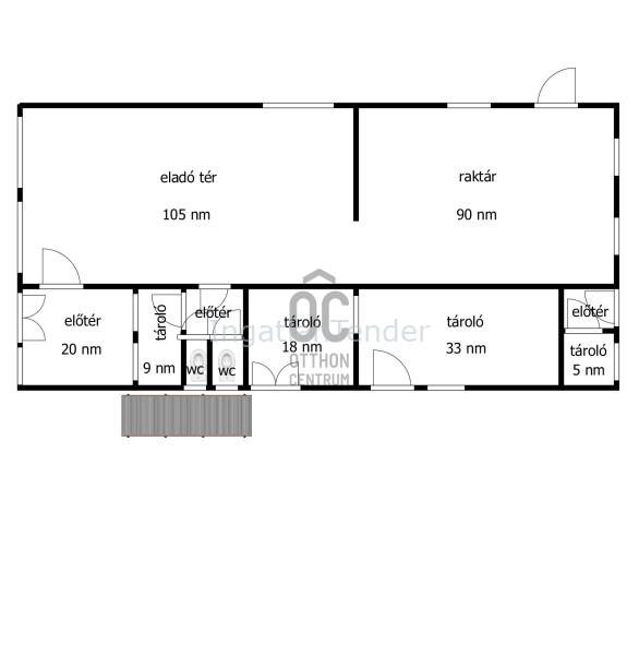
Megvételre kínálok Tuzséron, az ukrán határtól (Záhony) 9 kilométerre, közvetlenül a 4. számú főút mellett, egy a 80 -as években téglából épült, hullám palával fedett nettó 270 nm-es, üzleti célú ingatlant 1294 nm-es telken. Az épület korábban élelmiszer diszkontkén üzemelt, de tulajdonosváltás után felújították, 2024 -ben az ablakokat hőszigetelt műanyagra cserélték, belül kialakítottak egy konyhát, a vizesblokkokat, továbbá egy iroda helyiséget. Az ingatlanban jelenleg nincs fűtés de az elektromos hálózatot hűtő-fűtő klímákra építették ki. Az épületet családi események (eljegyzés, lakodalom, érettségi) megtartására hasznosítják bérbeadással, de a méreténél fogva kiválóan alkalmas lehet raktározás, logisztikai központ, tárolás, vagy kereskedelmi célokra is. Tuzsér eladó üzleti ingatlan | |||


