Sell, commercial, Pest, Dunakeszi
Address | |||
| Hungary, Pest, 2120 Dunakeszi | |||
Description | |||
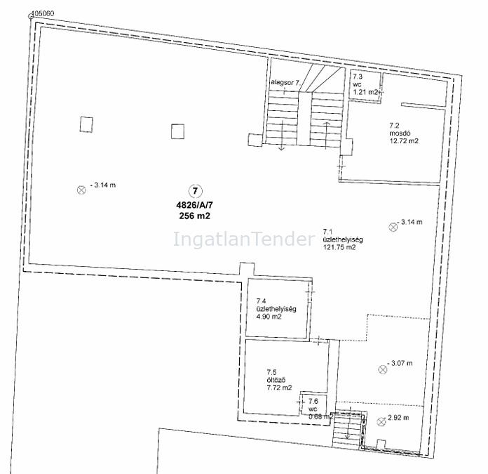
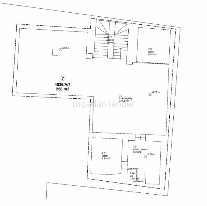
Kiváló befektetési lehetőség: Edzőterem eladó bérlővel együtt! Eladó egy 256 nm-es üzlethelyiség, mely jelenleg edzőteremként üzemel, és bérlővel együtt keres új tulajdonost. Az ingatlan két szintből áll: egy szuterénből és egy pinceszintből, amelyben egy svéd szauna is helyett kapott. A tulajdonos a vételárba beszámít lakást, telket, nagyobb értékű autót is. A helység klímával fűtött és külön vízórával rendelkezik, ami biztosítja a kényelmes működést. Az ingatlanhoz két külön bejárat is tartozik, az egyik az utcáról a lépcsőházon keresztül közelíthető meg, míg a másik közvetlenül a szuterén részből. A bérlő jelenleg havi 290.000 Ft bérleti díjat fizet, így ideális választás azoknak, akik stabil jövedelmet szeretnének elérni. Főbb jellemzők: Két szint: szuterén és pinceszint Svéd szauna a pinceszinten Kiváló forgalmas helyszín Fűtés klímával Külön vízóra Jelenleg bérlőnek kiadva Ha felkeltette érdeklődését, vegye fel velünk a kapcsolatot, és további információkat biztosítunk! |


