Sell, apartment, Budapest, II. kerület
Address | |||
| Hungary, Budapest, 1021 II. kerület - Hűvösvölgy | |||
Building | |||
| Building-type | Tégla | Year of construction | 2008 év |
Technical data | |||
| State of the object | Kiváló | Heating | Házközponti egyedi méréssel |
General | |||
| View | Street view | Orientation | dél |
Rooms | |||
| Number of bedrooms | 4 | ||
Description | |||
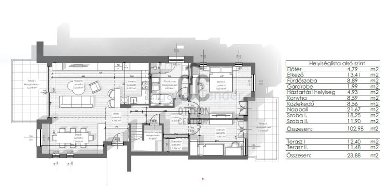
Hűvösvölgyben, tájvédelmi körzet mellett frissen felújított luxuslakás eladó! Önnek ajánlom, mert - jól karbantartott lakóparkban, belső kétszintes lakás, - az alsó szinten tágas nappali kapcsolódó étkezővel és konyhával, egy nagy erkéllyel, - két háló, közös nagy erkéllyel, tágas fürdő, gardrób, háztartási helyiség, - a felső szinten a szülői háló, gardróbbal és fürdővel (ensuite), - 160 négyzetméteres terasz, igazi körpanorámával a János-hegytől az erdőn át a Citadelláig, - a teraszhoz kapcsolódva további 130 négyzetméter zöld tetőkert az igazi kikapcsolódás és társasági események ideális helyszíne, - házközponti fűtés egyedi méréssel, klíma, kedvező rezsi, - 2 garázshely, egy tároló és ház közös használatú, gondozott kertje, - jó közlekedés, nemzetközi iskolák a közelben. Igazán egyedi panorámás kertes luxuslakás. Hívjon! Budapest, Buda, II. kerület, 2. kerület, Hűvösvölgy, eladó lakás, luxus, 4 szoba, 3 háló, 2 fürdő, erkély, nagy terasz, tetőkert, panoráma, 2 garázs, | |||


